ジェノヴィア練馬春日町スカイガーデン602 6階 | 1DK | 13.3万円
安心のオートロック付き!TVモニター付きインターホン!
| 賃料 | 13.3万円 | 管理費・共益費 | 1万円 |
|---|---|---|---|
| 敷金/礼金 | なし / なし | 専有面積 | 30.40m² |
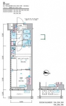
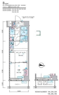
| 間取り | 1DK | 階建 | 6階/6階建 |
ジェノヴィア練馬春日町スカイガーデン602の詳細
| 物件種別 | マンション | ||
|---|---|---|---|
| 賃料 | 13.3万円 | 管理費・共益費 | 1万円 |
| 敷金/保証金 | なし / - | 礼金/償却・敷引 | なし / - |
| 更新料 | 1ヶ月 | ||
| その他費用 |
預かりクリーニング代:44,000円 鍵交換費用:27,500円 |
||
| 所在地 | 東京都練馬区春日町2丁目8-20 | ||
| 交通 | |||
| 間取り | 1DK | 間取り内訳 | |
| 専有面積 | 30.40m² | バルコニー面積 | |
| 築年月(築年数) | 2021年04月(築4年) | 方位 | 東 |
| 建物構造 | RC(鉄筋コンクリート) | 所在階/階建 | 6階/6階建 |
| 総戸数 | - | 駐車場 | 無 |
| 保険料 | 要 15,000円 2年 | 契約期間 | 2年間 |
| 現況(予定年月) | 相談 | ||
| 管理 | |||
| 設備・条件 | 2階以上、最上階、システムキッチン、バス・トイレ別、温水洗浄便座、浴室乾燥機、追い焚き、室内洗濯機置き場、フローリング、エアコン、バルコニー、礼金なし、敷金なし、保証人不要、2人入居相談、インターネット対応、CATV、オートロック、TVドアホン、防犯カメラ、宅配ボックス、エレベータ、都市ガス | ||
| 備考 | 1年未満解約の場合総賃料の2ヶ月分短期解約違約金あり。(フリーレント適用の場合は違約金3ヶ月分) フリーレント1ヶ月 退去時:エアコンクリーニング費用16500円/台 解約予告2ヶ月前 | ||
| 周辺施設 |
コンビニ距離654m、スーパー距離430m、病院距離1,925m |
||
| 物件番号 | 969929 | 取引態様 | 仲介 |
| 情報更新日 | 2025年12月26日 | ||
| 物件番号 | |||
敷金・礼金・家賃・入居時期時期など、何でもご相談ください!
都営三田線でのお部屋探しなら当店にお任せください!
ハウス・トゥ・ハウス志村坂上店で元気にお待ちしております!







