モナリエ春日Ⅰ103 1階 | 1LDK | 12万円
近くにはセブンイレブン 練馬早宮4丁目店(徒歩5分)がありちょっとした買い物に便利です。インターホン
| 賃料 | 12万円 | 管理費・共益費 | 0.5万円 |
|---|---|---|---|
| 敷金/礼金 | なし / 1ヶ月 | 専有面積 | 37.53m² |
| 間取り | 1LDK | 階建 | 1階/2階建 |
モナリエ春日Ⅰ103の詳細
| 物件種別 | アパート | ||
|---|---|---|---|
| 賃料 | 12万円 | 管理費・共益費 | 0.5万円 |
| 敷金/保証金 | なし / - | 礼金/償却・敷引 | 1ヶ月 / - |
| 更新料 | 1ヶ月 | ||
| その他費用 | 預りクリーニング費用:49,500円 | ||
| 所在地 | 東京都練馬区春日町2丁目6-6 | ||
| 交通 | |||
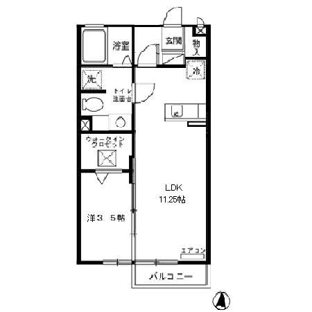
| 間取り | 1LDK | 間取り内訳 |
洋室 3.5 畳 LDK 11.2 畳 |
| 専有面積 | 37.53m² | バルコニー面積 | |
| 築年月(築年数) | 2005年03月(築20年) | 方位 | 南 |
| 建物構造 | 軽量鉄骨 | 所在階/階建 | 1階/2階建 |
| 総戸数 | - | 駐車場 | |
| 保険料 | 要 | 契約期間 | 2年間 |
| 現況(予定年月) | 2025年11月下旬 | ||
| 管理 | |||
| 設備・条件 | 1階、南向き部屋、システムキッチン、バス・トイレ別、浴室乾燥機、追い焚き、室内洗濯機置き場、フローリング、エアコン、ウォークインクローゼット、バルコニー、敷金なし、2人入居相談、インターネット対応、CATV、TVドアホン、宅配ボックス、都市ガス | ||
| 備考 | 歩いて徒歩6分の場所にマルヤス平和台店があるのもポイント。収納はシューズボックス・ウォークインクロゼットなどが備え付けられているので、衣類や日用品の収納に重宝します。帰る場所に魅力があると、より楽しい生活になりませんか。住まいは誰にとっても重要な役割を果たしてくれるものです。ご希望の住まいを共に見つけましょう。 | ||
| 周辺施設 |
コンビニ距離393m、スーパー距離438m、病院距離1,665m |
||
| 物件番号 | 947153 | 取引態様 | 仲介 |
| 情報更新日 | 2026年02月03日 | ||
| 物件番号 | |||
敷金・礼金・家賃・入居時期時期など、何でもご相談ください!
都営三田線でのお部屋探しなら当店にお任せください!
ハウス・トゥ・ハウス志村坂上店で元気にお待ちしております!







