ラフォール十条201 2階 | 1DK | 14.2万円
新築!安心のオートロック付き物件です!
| 賃料 | 14.2万円 | 管理費・共益費 | 0.5万円 |
|---|---|---|---|
| 敷金/礼金 | 1ヶ月 / 1ヶ月 | 専有面積 | 36.79m² |
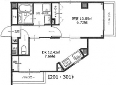
| 間取り | 1DK | 階建 | 2階/3階建 |
ラフォール十条201の詳細
| 物件種別 | マンション | ||
|---|---|---|---|
| 賃料 | 14.2万円 | 管理費・共益費 | 0.5万円 |
| 敷金/保証金 | 1ヶ月 / - | 礼金/償却・敷引 | 1ヶ月 / - |
| 更新料 | 1ヶ月 | ||
| その他費用 | - | ||
| 所在地 | 東京都北区上十条1丁目7-18 | ||
| 交通 |
JR京浜東北・根岸線「東十条駅」 徒歩11分 |
||
| 間取り | 1DK | 間取り内訳 | |
| 専有面積 | 36.79m² | バルコニー面積 | |
| 築年月(築年数) | 2025年05月(新築) | 方位 | 南東 |
| 建物構造 | 鉄骨造 | 所在階/階建 | 2階/3階建 |
| 総戸数 | - | 駐車場 | |
| 保険料 | 要 15,000円 2年 | 契約期間 | 2年間 |
| 現況(予定年月) | 即時 | ||
| 管理 | |||
| 設備・条件 | 2階以上、角部屋、システムキッチン、バス・トイレ別、温水洗浄便座、追い焚き、室内洗濯機置き場、フローリング、エアコン、バルコニー、即入居可、BSアンテナ、オートロック、TVドアホン、防犯カメラ、低層マンション | ||
| 備考 | 契約時:連帯保証人必要(保証会社利用も可) 掲載情報と現況が異なる場合は、現況を優先とします。 | ||
| 周辺施設 |
コンビニ距離112m、スーパー距離245m、病院距離328m |
||
| 物件番号 | 976202 | 取引態様 | 仲介 |
| 情報更新日 | 2026年03月10日 | ||
| 物件番号 | |||
敷金・礼金・家賃・入居時期時期など、何でもご相談ください!
JR山手線・巣鴨駅から徒歩1分!
ハウス・トゥ・ハウス巣鴨店で元気にお待ちしております!







