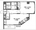
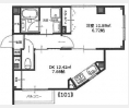
ラフォール十条の空室一覧(全9部屋)
ラフォール十条の詳細
| 物件種別 | マンション | ||
|---|---|---|---|
| 物件名 | ラフォール十条 | ||
| 所在地 | 東京都北区上十条1丁目7-18 | ||
| 交通 |
JR京浜東北・根岸線「東十条駅」 徒歩11分 |
||
| 築年月(築年数) | 2025年03月(築1年以内) | 建物構造 | 鉄骨造 |
| 総戸数 | - | 階建 | 3階建 - |
| 管理 | |||
| 設備・条件 | BSアンテナ、CATV、オートロック、TVドアホン、防犯カメラ、低層マンション | ||
| 備考 | turnkey_jujo | ||
| 周辺施設 |
コンビニ距離112m、スーパー距離245m、総合病院距離328m |
||
| 物件番号 | |||





















