ジオエント秋葉原1002 10階 | 2LDK | 28万円
ぜひ一度見ていただきたい、「ジオエント秋葉原」です。買い物に便利なショッピングセンター「アトレ秋葉原
| 賃料 | 28万円 | 管理費・共益費 | 2.5万円 |
|---|---|---|---|
| 敷金/礼金 | 1ヶ月 / なし | 専有面積 | 47.96m² |
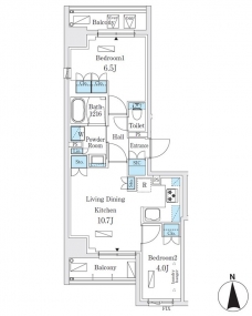
| 間取り | 2LDK | 階建 | 10階/12階建 |
ジオエント秋葉原1002の詳細
| 物件種別 | マンション | ||
|---|---|---|---|
| 賃料 | 28万円 | 管理費・共益費 | 2.5万円 |
| 敷金/保証金 | 1ヶ月 / - | 礼金/償却・敷引 | なし / - |
| 更新料 | 1ヶ月 | ||
| その他費用 | - | ||
| 所在地 | 東京都千代田区神田佐久間河岸71-2 | ||
| 交通 | |||
| 間取り | 2LDK | 間取り内訳 | |
| 専有面積 | 47.96m² | バルコニー面積 | |
| 築年月(築年数) | 2025年04月(築1年以内) | 方位 | 南 |
| 建物構造 | RC(鉄筋コンクリート) | 所在階/階建 | 10階/12階建 |
| 総戸数 | - | 駐車場 | |
| 保険料 | 要 | 契約期間 | 2年間 |
| 現況(予定年月) | 即時 | ||
| 管理 | |||
| 設備・条件 | 2階以上、南向き部屋、システムキッチン、バス・トイレ別、浴室乾燥機、室内洗濯機置き場、フローリング、エアコン、シューズインクローゼット、バルコニー、即入居可、礼金なし、BSアンテナ、CSアンテナ、オートロック、宅配ボックス、エレベータ | ||
| 備考 | 口座振替事務手数料110円(月額) ■1年未満解約違約金あり(賃料1ヶ月分+フリーレント分賃料・共益費) ■ペット楽器不可 | ||
| 周辺施設 |
コンビニ距離598m、スーパー距離946m、病院距離1,713m |
||
| 物件番号 | 972391 | 取引態様 | 仲介 |
| 情報更新日 | 2026年01月13日 | ||
| 物件番号 | |||
敷金・礼金・家賃・入居時期時期など、何でもご相談ください!
山手線・東京メトロ南北線沿線でのお部屋探しなら
当店にお任せください!
ハウス・トゥ・ハウス駒込店で元気にお待ちしております!







