レジディア神田岩本町1201 12階 | 1LDK | 22.5万円
どういった生活を送りたいか。それも住まい選びでは必要な要素です。新しい住まいでの快適な生活を、当社ス
| 賃料 | 22.5万円 | 管理費・共益費 | 2万円 |
|---|---|---|---|
| 敷金/礼金 | 1ヶ月 / 1ヶ月 | 専有面積 | 43.61m² |
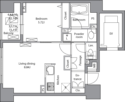
| 間取り | 1LDK | 階建 | 12階/15階建(B1階) |
レジディア神田岩本町1201の詳細
| 物件種別 | マンション | ||
|---|---|---|---|
| 賃料 | 22.5万円 | 管理費・共益費 | 2万円 |
| 敷金/保証金 | 1ヶ月 / - | 礼金/償却・敷引 | 1ヶ月 / - |
| 更新料 | 1ヶ月 | ||
| その他費用 |
入居者限定会員サービス(2年):11,000円 鍵交換費用:22,000円 |
||
| 所在地 | 東京都千代田区岩本町2丁目12-1 | ||
| 交通 | |||
| 間取り | 1LDK | 間取り内訳 | |
| 専有面積 | 43.61m² | バルコニー面積 | |
| 築年月(築年数) | 2004年02月(築22年) | 方位 | 南西 |
| 建物構造 | RC(鉄筋コンクリート) | 所在階/階建 | 12階/15階建(B1階) |
| 総戸数 | 65戸 | 駐車場 | |
| 保険料 | 要 21,500円 2年 | 契約期間 | 2年間 |
| 現況(予定年月) | 2026年01月下旬 | ||
| 管理 | |||
| 設備・条件 | 2階以上、システムキッチン、バス・トイレ別、浴室乾燥機、室内洗濯機置き場、フローリング、エアコン、バルコニー、BSアンテナ、CSアンテナ、CATV、オートロック、TVドアホン、防犯カメラ、宅配ボックス、エレベータ | ||
| 備考 | インターネット利用料1650円(月額) ■1年未満解約時、賃料1ヶ月分の違約金有 ■大手法人契約の場合は敷金2ヶ月 ■セカンドハウス利用不可 ■2026年1月リノベーション※施工内容:キッチン・洗面台・浴室・トイレ・建具・フローリング | ||
| 周辺施設 |
コンビニ距離963m、スーパー距離893m、病院距離755m |
||
| 物件番号 | 968427 | 取引態様 | 仲介 |
| 情報更新日 | 2026年02月04日 | ||
| 物件番号 | |||
敷金・礼金・家賃・入居時期時期など、何でもご相談ください!
山手線・東京メトロ南北線沿線でのお部屋探しなら
当店にお任せください!
ハウス・トゥ・ハウス駒込店で元気にお待ちしております!







