MAXIV川口青木305 3階 | 1K | 7.2万円
川口市や京浜東北線西川口付近でお探しなら、信頼と安心の当社へご連絡をお待ちしております。
| 賃料 | 7.2万円 | 管理費・共益費 | 1.5万円 |
|---|---|---|---|
| 敷金/礼金 | なし / なし | 専有面積 | 20.59m² |
| 間取り | 1K | 階建 | 3階/7階建 |
MAXIV川口青木305の詳細
| 物件種別 | マンション | ||
|---|---|---|---|
| 賃料 | 7.2万円 | 管理費・共益費 | 1.5万円 |
| 敷金/保証金 | なし / - | 礼金/償却・敷引 | なし / - |
| 更新料 | 1.5ヶ月 | ||
| その他費用 |
入居中サポート:21,450円 室内抗菌処理代:17,600円 契約事務手数料:11,000円 鍵交換費用:22,000円 |
||
| 所在地 | 埼玉県川口市西青木4丁目2-28 | ||
| 交通 |
JR京浜東北・根岸線「西川口駅」 徒歩10分 JR京浜東北・根岸線「川口駅」 徒歩27分 |
||
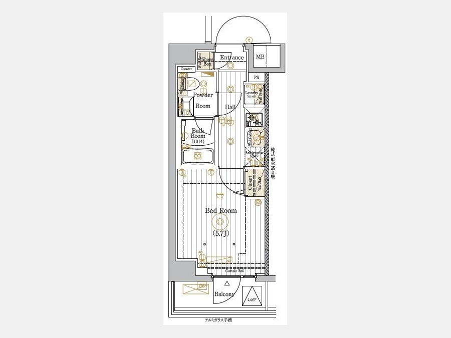
| 間取り | 1K | 間取り内訳 |
洋室 5.7 畳 K |
| 専有面積 | 20.59m² | バルコニー面積 | |
| 築年月(築年数) | 2025年02月(新築) | 方位 | 東 |
| 建物構造 | RC(鉄筋コンクリート) | 所在階/階建 | 3階/7階建 |
| 総戸数 | 112戸 | 駐車場 | |
| 保険料 | 要 23,000円 2年 | 契約期間 | 2年間 |
| 現況(予定年月) | 即時 | ||
| 管理 | |||
| 設備・条件 | 2階以上、システムキッチン、バス・トイレ別、温水洗浄便座、浴室乾燥機、室内洗濯機置き場、フローリング、エアコン、シューズインクローゼット、バルコニー、分譲賃貸、即入居可、礼金なし、敷金なし、保証人不要、ペット相談、2人入居相談、インターネット対応、BSアンテナ、CSアンテナ、オートロック、TVドアホン、防犯カメラ、宅配ボックス、エレベータ、都市ガス | ||
| 備考 | お車でご案内します。お気軽にお問い合わせください。 1年未満の解約の場合、賃料2ヶ月分の違約金あり。 2年未満の解約の場合、賃料1ヶ月分の違約金あり。 更新事務手数料22000円。 ペット飼育可/共益費3500円追加(犬・猫いずれか1匹:成長時体長50以下、体重10以下)。 引越し業者指定。 | ||
| 周辺施設 |
コンビニ距離411m、スーパー距離301m、病院距離484m |
||
| 物件番号 | 961368 | 取引態様 | 仲介 |
| 情報更新日 | 2025年12月27日 | ||
| 物件番号 | |||
敷金・礼金・家賃・入居時期時期など、何でもご相談ください!
山手線・京浜東北線の2路線が使える便利な街・田端!
ハウス・トゥ・ハウス田端店で元気にお待ちしております!







