MAXIV川口青木202 2階 | 1K | 7.7万円
当社スタッフの豊富な経験から、住まい探しに関するお問い合わせを受け付けております。お客様のニーズにお
| 賃料 | 7.7万円 | 管理費・共益費 | 1万円 |
|---|---|---|---|
| 敷金/礼金 | 1ヶ月 / なし | 専有面積 | 20.85m² |
| 間取り | 1K | 階建 | 2階/7階建 |
MAXIV川口青木202の詳細
| 物件種別 | マンション | ||
|---|---|---|---|
| 賃料 | 7.7万円 | 管理費・共益費 | 1万円 |
| 敷金/保証金 | 1ヶ月 / - | 礼金/償却・敷引 | なし / - |
| 更新料 | 1ヶ月 | ||
| その他費用 |
文書作成費:5,500円 くらしーど24:16,500円 |
||
| 所在地 | 埼玉県川口市西青木4丁目2-28 | ||
| 交通 |
JR京浜東北・根岸線「西川口駅」 徒歩9分 JR京浜東北・根岸線「川口駅」 徒歩30分 |
||
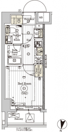
| 間取り | 1K | 間取り内訳 |
洋室 5.6 畳 |
| 専有面積 | 20.85m² | バルコニー面積 | |
| 築年月(築年数) | 2025年03月(新築) | 方位 | 北 |
| 建物構造 | RC(鉄筋コンクリート) | 所在階/階建 | 2階/7階建 |
| 総戸数 | 112戸 | 駐車場 | |
| 保険料 | 要 20,000円 2年 | 契約期間 | 2年間 |
| 現況(予定年月) | 即時 | ||
| 管理 | |||
| 設備・条件 | 2階以上、システムキッチン、温水洗浄便座、浴室乾燥機、室内洗濯機置き場、フローリング、エアコン、シューズインクローゼット、バルコニー、分譲賃貸、即入居可、礼金なし、保証人不要、ペット相談、インターネット対応、オートロック、TVドアホン、宅配ボックス、都市ガス | ||
| 備考 | ペット飼育時は、敷金1ヶ月増・償却。半年未満の解約の場合、賃料1ヶ月分の違約金あり。 | ||
| 周辺施設 |
コンビニ距離411m、スーパー距離301m、病院距離484m |
||
| 物件番号 | 957355 | 取引態様 | 仲介 |
| 情報更新日 | 2026年02月10日 | ||
| 物件番号 | |||
敷金・礼金・家賃・入居時期時期など、何でもご相談ください!
2024年12月新規オープン!南浦和駅東口から徒歩1分♪
ハウス・トゥ・ハウス南浦和店で元気にお待ちしております!







