GENOVIA西川口Ⅱ607 6階 | 1K | 9.1万円
人気の分譲賃貸マンション♪オートロック付で安心のセキュリティ
| 賃料 | 9.1万円 | 管理費・共益費 | なし |
|---|---|---|---|
| 敷金/礼金 | 1ヶ月 / 1ヶ月 | 専有面積 | 22.03m² |
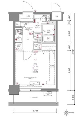
| 間取り | 1K | 階建 | 6階/7階建 |
GENOVIA西川口Ⅱ607の詳細
| 物件種別 | マンション | ||
|---|---|---|---|
| 賃料 | 9.1万円 | 管理費・共益費 | なし |
| 敷金/保証金 | 1ヶ月 / - | 礼金/償却・敷引 | 1ヶ月 / 1ヶ月(退去時) |
| 更新料 | 1ヶ月 | ||
| その他費用 | 鍵交換費用:44,000円 | ||
| 所在地 | 埼玉県川口市西川口2丁目5-1 | ||
| 交通 |
JR京浜東北・根岸線「西川口駅」 徒歩8分 JR京浜東北・根岸線「川口駅」 徒歩26分 |
||
| 間取り | 1K | 間取り内訳 |
洋室 7 畳 |
| 専有面積 | 22.03m² | バルコニー面積 | |
| 築年月(築年数) | 2025年03月(築1年) | 方位 | 東 |
| 建物構造 | RC(鉄筋コンクリート) | 所在階/階建 | 6階/7階建 |
| 総戸数 | - | 駐車場 | |
| 保険料 | 要 18,000円 2年 | 契約期間 | 2年間 |
| 現況(予定年月) | 2026年05月上旬 | ||
| 管理 | |||
| 設備・条件 | 2階以上、システムキッチン、バス・トイレ別、室内洗濯機置き場、エアコン、バルコニー、分譲賃貸、インターネット対応、BSアンテナ、CSアンテナ、オートロック、TVドアホン、防犯カメラ、宅配ボックス、駐輪場、エレベータ | ||
| 備考 | 解約時敷金償却1ヶ月。 契約開始後1年未満の解約の場合、賃料1ヶ月分の違約金あり。 室内写真は別のお部屋の写真です。 | ||
| 周辺施設 |
コンビニ距離59m、スーパー距離143m、病院距離296m |
||
| 物件番号 | 1004916 | 取引態様 | 仲介 |
| 情報更新日 | 2026年03月16日 | ||
| 物件番号 | |||
敷金・礼金・家賃・入居時期時期など、何でもご相談ください!
埼玉県への玄関口・川口でお部屋探し♪
ハウス・トゥ・ハウス川口店で元気にお待ちしております!







