GENOVIA西川口Ⅱ104 1階 | 1K | 7.8万円
新しい土地での新しい暮らし。川口市エリアや京浜東北線西川口付近にあるお部屋をお探しなら、当社にお任せ
| 賃料 | 7.8万円 | 管理費・共益費 | 1万円 |
|---|---|---|---|
| 敷金/礼金 | なし / なし | 専有面積 | 22.03m² |
| 間取り | 1K | 階建 | 1階/7階建 |
GENOVIA西川口Ⅱ104の詳細
| 物件種別 | マンション | ||
|---|---|---|---|
| 賃料 | 7.8万円 | 管理費・共益費 | 1万円 |
| 敷金/保証金 | なし / - | 礼金/償却・敷引 | なし / - |
| 更新料 | 1ヶ月 | ||
| その他費用 |
プロパンガス預り金:10,000円 消臭抗菌サービス:11,000円 ルームクリーニング費用:38,500円 |
||
| 所在地 | 埼玉県川口市西川口2丁目5-1 | ||
| 交通 |
JR京浜東北・根岸線「西川口駅」 徒歩8分 JR京浜東北・根岸線「川口駅」 徒歩26分 |
||
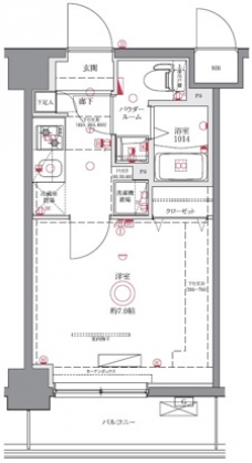
| 間取り | 1K | 間取り内訳 |
洋室 7 畳 K |
| 専有面積 | 22.03m² | バルコニー面積 | |
| 築年月(築年数) | 2025年03月(築1年) | 方位 | 東 |
| 建物構造 | RC(鉄筋コンクリート) | 所在階/階建 | 1階/7階建 |
| 総戸数 | - | 駐車場 | |
| 保険料 | 要 | 契約期間 | 2年間 |
| 現況(予定年月) | 2026年05月下旬 | ||
| 管理 | |||
| 設備・条件 | 1階、システムキッチン、バス・トイレ別、温水洗浄便座、浴室乾燥機、室内洗濯機置き場、フローリング、エアコン、バルコニー、分譲賃貸、礼金なし、敷金なし、ペット相談、2人入居相談、インターネット対応、オートロック、TVドアホン、防犯カメラ、宅配ボックス、バイク置き場、駐輪場、エレベータ、プロパンガス | ||
| 備考 | ペット飼育の場合敷金1ヶ月追加(解約時償却)大型犬・猫・多頭飼い可。 鍵交換費用27500円(任意)。 1年未満短期違約金有、賃料+管理費合計額。 解約予告2ヶ月前。 契約事務手数料11000円。 | ||
| 周辺施設 |
コンビニ距離69m、スーパー距離177m、病院距離340m |
||
| 物件番号 | 999482 | 取引態様 | 仲介 |
| 情報更新日 | 2026年03月11日 | ||
| 物件番号 | |||
敷金・礼金・家賃・入居時期時期など、何でもご相談ください!
山手線・京浜東北線の2路線が使える便利な街・田端!
ハウス・トゥ・ハウス田端店で元気にお待ちしております!







