ワンルーフレジデンス板橋大山 803 8階 | 1DK | 12.2万円
オートロック機能があるので来訪者は基本的に玄関先まで来ることがなく防犯対策につながります。
| 賃料 | 12.2万円 | 管理費・共益費 | 1.2万円 |
|---|---|---|---|
| 敷金/礼金 | 1ヶ月 / なし | 専有面積 | 25.23m² |
| 間取り | 1DK | 階建 | 8階/12階建 |
ワンルーフレジデンス板橋大山 803の詳細
| 物件種別 | マンション | ||
|---|---|---|---|
| 賃料 | 12.2万円 | 管理費・共益費 | 1.2万円 |
| 敷金/保証金 | 1ヶ月 / - | 礼金/償却・敷引 | なし / - |
| 更新料 | - | ||
| その他費用 |
鍵交換費用:22,000円 室内清掃費用:44,000円 |
||
| 所在地 | 東京都板橋区大山東町29-17 | ||
| 交通 | |||
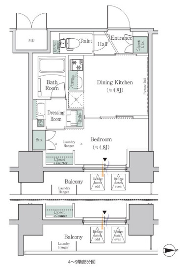
| 間取り | 1DK | 間取り内訳 |
洋室 4.8 畳 1 室 DK 4.8 畳 1 室 |
| 専有面積 | 25.23m² | バルコニー面積 | |
| 築年月(築年数) | 2023年12月(築2年) | 方位 | 東 |
| 建物構造 | RC(鉄筋コンクリート) | 所在階/階建 | 8階/12階建 |
| 総戸数 | - | 駐車場 | |
| 保険料 | 要 | 契約期間 | 2年間 |
| 現況(予定年月) | 2026年04月中旬 | ||
| 管理 | |||
| 設備・条件 | 2階以上、システムキッチン、バス・トイレ別、浴室乾燥機、室内洗濯機置き場、フローリング、エアコン、バルコニー、礼金なし、保証人不要、ペット相談、インターネット対応、BSアンテナ、CSアンテナ、オートロック、宅配ボックス、エレベータ | ||
| 備考 | 口座振替事務手数料220円(月額) 定期借家契約2年、再契約相談、再契約料:新賃料の1ヶ月。 ペット相談可能(敷金1ヶ月積増)。 1年未満解約違約金有(賃料・共益費1ヶ月分)。 退去時における通常清掃費用44000円。 駐輪場登録料2200円。 退去時エアコンクリーニング費用有。 | ||
| 周辺施設 |
コンビニ距離136m、スーパー距離240m、病院距離560m |
||
| 物件番号 | 987248 | 取引態様 | 仲介 |
| 情報更新日 | 2026年02月06日 | ||
| 物件番号 | |||
敷金・礼金・家賃・入居時期時期など、何でもご相談ください!
池袋まで埼京線で5分というアクセス利便性が魅力★
ハウス・トゥ・ハウス板橋店で元気にお待ちしております!







