ワンルーフレジデンス板橋大山602 6階 | 1DK | 12.1万円
オートロックと玄関の鍵で二重で守られているのでより安全に暮らせます。
| 賃料 | 12.1万円 | 管理費・共益費 | 1.2万円 |
|---|---|---|---|
| 敷金/礼金 | 1ヶ月 / なし | 専有面積 | 25.32m² |
| 間取り | 1DK | 階建 | 6階/12階建 |
360度パノラマ
ワンルーフレジデンス板橋大山602の詳細
| 物件種別 | マンション | ||
|---|---|---|---|
| 賃料 | 12.1万円 | 管理費・共益費 | 1.2万円 |
| 敷金/保証金 | 1ヶ月 / - | 礼金/償却・敷引 | なし / - |
| 更新料 | - | ||
| その他費用 | 鍵交換費用:22,000円 | ||
| 所在地 | 東京都板橋区大山東町29-17 | ||
| 交通 | |||
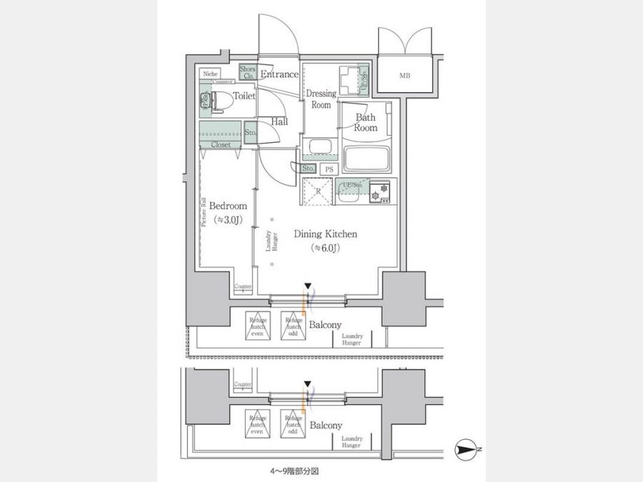
| 間取り | 1DK | 間取り内訳 |
DK 6 畳 洋室 3 畳 |
| 専有面積 | 25.32m² | バルコニー面積 | |
| 築年月(築年数) | 2023年12月(築2年) | 方位 | 東 |
| 建物構造 | RC(鉄筋コンクリート) | 所在階/階建 | 6階/12階建 |
| 総戸数 | - | 駐車場 | 無 |
| 保険料 | 要 | 契約期間 | 2年間 |
| 現況(予定年月) | 即時 | ||
| 管理 | |||
| 設備・条件 | 2階以上、システムキッチン、バス・トイレ別、浴室乾燥機、室内洗濯機置き場、フローリング、エアコン、バルコニー、即入居可、礼金なし、ペット相談、360°パノラマ有り、BSアンテナ、CSアンテナ、オートロック、宅配ボックス、エレベータ | ||
| 備考 | 口座振替事務手数料110円(月額) ◆定期借家契約2年◆ペット相談可能(敷金1ヶ月積増)◆1年未満解約違約金有(賃料・共益費1ヶ月分)◆退去時通常清掃費用44000円◆退去時エアコンクリーニング費用12100円/台◆駐輪場登録料2200円 | ||
| 周辺施設 |
コンビニ距離136m、スーパー距離240m、病院距離1,082m |
||
| 物件番号 | 980968 | 取引態様 | 仲介 |
| 情報更新日 | 2026年01月26日 | ||
| 物件番号 | |||
敷金・礼金・家賃・入居時期時期など、何でもご相談ください!
3路線3駅利用可の板橋エリアでお部屋探し♪
ハウス・トゥ・ハウス板橋東口店で元気にお待ちしております!







