ザ・パークハビオ滝野川402 4階 | 1DK | 12.6万円
複数路線使用可能で通勤通学に便利です
| 賃料 | 12.6万円 | 管理費・共益費 | 1.5万円 |
|---|---|---|---|
| 敷金/礼金 | 1ヶ月 / 1ヶ月 | 専有面積 | 25.80m² |
| 間取り | 1DK | 階建 | 4階/14階建 |
360度パノラマ
ザ・パークハビオ滝野川402の詳細
| 物件種別 | マンション | ||
|---|---|---|---|
| 賃料 | 12.6万円 | 管理費・共益費 | 1.5万円 |
| 敷金/保証金 | 1ヶ月 / - | 礼金/償却・敷引 | 1ヶ月 / - |
| 更新料 | 1ヶ月 | ||
| その他費用 |
24時間緊急サポート/2年:16,500円 鍵交換費用:33,000円 |
||
| 所在地 | 東京都北区滝野川6丁目1-1 | ||
| 交通 | |||
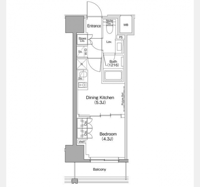
| 間取り | 1DK | 間取り内訳 |
DK 5.3 畳 洋室 4.3 畳 |
| 専有面積 | 25.80m² | バルコニー面積 | |
| 築年月(築年数) | 2023年02月(築2年) | 方位 | 北東 |
| 建物構造 | RC(鉄筋コンクリート) | 所在階/階建 | 4階/14階建 |
| 総戸数 | - | 駐車場 | 無 |
| 保険料 | 要 | 契約期間 | 2年間 |
| 現況(予定年月) | 2026年01月中旬 | ||
| 管理 | |||
| 設備・条件 | 2階以上、システムキッチン、バス・トイレ別、浴室乾燥機、追い焚き、室内洗濯機置き場、フローリング、エアコン、バルコニー、保証人不要、ペット相談、楽器相談、360°パノラマ有り、インターネット対応、BSアンテナ、CSアンテナ、オートロック、TVドアホン、防犯カメラ、宅配ボックス、バイク置き場、駐輪場、エレベータ、都市ガス | ||
| 備考 | ペット相談可:小型犬・猫計2匹迄/敷金1ヵ月積み増し。 楽器相談可(10時から20時/連続演奏1時間以内/消音機能付きに限る)。 解約予告2ヶ月前。 | ||
| 周辺施設 |
コンビニ距離79m、スーパー距離130m、病院距離1,049m |
||
| 物件番号 | 953744 | 取引態様 | 仲介 |
| 情報更新日 | 2026年01月10日 | ||
| 物件番号 | |||
敷金・礼金・家賃・入居時期時期など、何でもご相談ください!
3路線3駅利用可の板橋エリアでお部屋探し♪
ハウス・トゥ・ハウス板橋東口店で元気にお待ちしております!







