ザ・パークハビオ滝野川1103 11階 | 1DK | 13万円
安心のオートロック付き!TVモニター付きインターホン!
| 賃料 | 13万円 | 管理費・共益費 | 1.5万円 |
|---|---|---|---|
| 敷金/礼金 | 1ヶ月 / 1ヶ月 | 専有面積 | 25.80m² |
| 間取り | 1DK | 階建 | 11階/14階建 |
360度パノラマ
ザ・パークハビオ滝野川1103の詳細
| 物件種別 | マンション | ||
|---|---|---|---|
| 賃料 | 13万円 | 管理費・共益費 | 1.5万円 |
| 敷金/保証金 | 1ヶ月 / - | 礼金/償却・敷引 | 1ヶ月 / - |
| 更新料 | 1ヶ月 | ||
| その他費用 |
駆け付けサポート24(2年):16,500円 鍵交換費用:33,000円 |
||
| 所在地 | 東京都北区滝野川6丁目1-1 | ||
| 交通 | |||
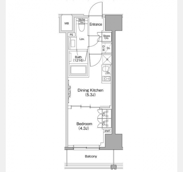
| 間取り | 1DK | 間取り内訳 |
DK 5.3 畳 1 室 洋室 4.3 畳 1 室 |
| 専有面積 | 25.80m² | バルコニー面積 | 3.66m² |
| 築年月(築年数) | 2023年02月(築2年) | 方位 | 北東 |
| 建物構造 | RC(鉄筋コンクリート) | 所在階/階建 | 11階/14階建 |
| 総戸数 | - | 駐車場 | 空有1台/-38,000円 |
| 保険料 | 要 | 契約期間 | 2年間 |
| 現況(予定年月) | 2026年03月上旬 | ||
| 管理 | |||
| 設備・条件 | 2階以上、システムキッチン、バス・トイレ別、浴室乾燥機、追い焚き、室内洗濯機置き場、フローリング、エアコン、バルコニー、保証人不要、ペット相談、楽器相談、360°パノラマ有り、インターネット対応、BSアンテナ、CSアンテナ、オートロック、宅配ボックス、エレベータ | ||
| 備考 | ペット飼育相談可能:小型犬・猫計2匹迄/敷金1か月積増 楽器相談可能:10時から20時/連続演奏1時間以内/消音機能付限定 解約予告2ヶ月前 | ||
| 周辺施設 |
コンビニ距離108m、スーパー距離217m、病院距離330m |
||
| 物件番号 | 960470 | 取引態様 | 仲介 |
| 情報更新日 | 2026年01月22日 | ||
| 物件番号 | |||
敷金・礼金・家賃・入居時期時期など、何でもご相談ください!
JR山手線・巣鴨駅から徒歩1分!
ハウス・トゥ・ハウス巣鴨店で元気にお待ちしております!







