レーヴマニフィック本郷1003 10階 | 1LDK | 21.1万円
本富士警察署 壱岐坂交番が近く(徒歩2分)にあって安心です。共用部には宅配ボックス・ゴミ出し24時
| 賃料 | 21.1万円 | 管理費・共益費 | 0.8万円 |
|---|---|---|---|
| 敷金/礼金 | 1ヶ月 / 2ヶ月 | 専有面積 | 40.68m² |
| 間取り | 1LDK | 階建 | 10階/10階建 |
レーヴマニフィック本郷1003の詳細
| 物件種別 | マンション | ||
|---|---|---|---|
| 賃料 | 21.1万円 | 管理費・共益費 | 0.8万円 |
| 敷金/保証金 | 1ヶ月 / - | 礼金/償却・敷引 | 2ヶ月 / - |
| 更新料 | 1ヶ月 | ||
| その他費用 |
契約事務手数料:5,500円 鍵交換費用:33,000円 |
||
| 所在地 | 東京都文京区本郷1丁目12-5 | ||
| 交通 | |||
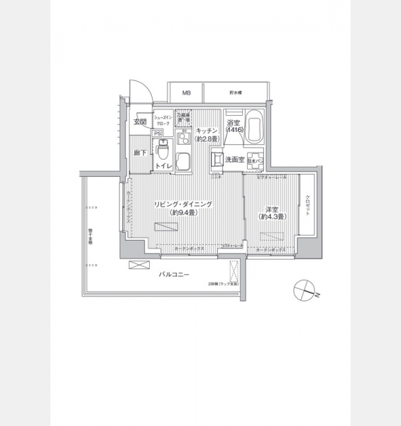
| 間取り | 1LDK | 間取り内訳 |
洋室 4.3 畳 LD 9.4 畳 K 2.8 畳 |
| 専有面積 | 40.68m² | バルコニー面積 | |
| 築年月(築年数) | 2016年08月(築9年) | 方位 | 東 |
| 建物構造 | RC(鉄筋コンクリート) | 所在階/階建 | 10階/10階建 |
| 総戸数 | 29戸 | 駐車場 | |
| 保険料 | 要 20,000円 2年 | 契約期間 | 2年間 |
| 現況(予定年月) | 2026年03月中旬 | ||
| 管理 | |||
| 設備・条件 | 2階以上、最上階、角部屋、システムキッチン、バス・トイレ別、温水洗浄便座、浴室乾燥機、追い焚き、室内洗濯機置き場、フローリング、エアコン、シューズインクローゼット、バルコニー、オール電化、インターネット対応、BSアンテナ、CATV、オートロック、TVドアホン、防犯カメラ、宅配ボックス、駐輪場、エレベータ | ||
| 備考 | ■原状回復:(解約時)清掃費用+実費 ■お客さまの賃貸条件により、保証会社・保証料・敷金・礼金等の費用やお手続きが異なる場合があります。 ■敷金1ヶ月はGTN利用もしくは法人契約で保証会社を利用しない場合、敷金2ヶ月となります。 ■図面と現況が異なる場合には現況優先 | ||
| 周辺施設 |
コンビニ距離344m、スーパー距離482m、病院距離835m |
||
| 物件番号 | 993460 | 取引態様 | 仲介 |
| 情報更新日 | 2026年02月20日 | ||
| 物件番号 | |||
敷金・礼金・家賃・入居時期時期など、何でもご相談ください!
山手線・東京メトロ南北線沿線でのお部屋探しなら
当店にお任せください!
ハウス・トゥ・ハウス駒込店で元気にお待ちしております!







