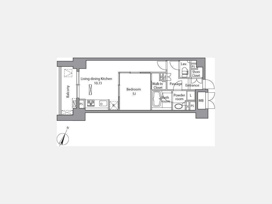
レジディア水道橋1404 14階 | 1LDK | 19.7万円
近くにはセブンイレブン 千代田三崎町白山通り店(徒歩6分)がありちょっとした買い物に便利です。初期
| 賃料 | 19.7万円 | 管理費・共益費 | 2万円 |
|---|---|---|---|
| 敷金/礼金 | 1ヶ月 / なし | 専有面積 | 42.20m² |
| 間取り | 1LDK | 階建 | 14階/14階建(B1階) |
レジディア水道橋1404の詳細
| 物件種別 | マンション | ||
|---|---|---|---|
| 賃料 | 19.7万円 | 管理費・共益費 | 2万円 |
| 敷金/保証金 | 1ヶ月 / - | 礼金/償却・敷引 | なし / - |
| 更新料 | 1ヶ月 | ||
| その他費用 |
入居者限定会員サービス(2年):11,000円 鍵交換費用:22,000円 |
||
| 所在地 | 東京都千代田区神田三崎町3丁目2-6 | ||
| 交通 | |||
| 間取り | 1LDK | 間取り内訳 | |
| 専有面積 | 42.20m² | バルコニー面積 | |
| 築年月(築年数) | 2004年12月(築21年) | 方位 | 南西 |
| 建物構造 | SRC(鉄骨鉄筋コンクリート) | 所在階/階建 | 14階/14階建(B1階) |
| 総戸数 | 65戸 | 駐車場 | |
| 保険料 | 要 21,500円 2年 | 契約期間 | 2年間 |
| 現況(予定年月) | 2026年02月中旬 | ||
| 管理 | |||
| 設備・条件 | 2階以上、最上階、システムキッチン、バス・トイレ別、温水洗浄便座、浴室乾燥機、室内洗濯機置き場、フローリング、エアコン、バルコニー、礼金なし、ペット相談、BSアンテナ、CATV、オートロック、TVドアホン、防犯カメラ、宅配ボックス、駐輪場、エレベータ | ||
| 備考 | インターネット利用料1650円(月額) ■2ヶ月前解約 ■ペット相談可:小型犬もしくは猫1匹、敷金1ヶ月追加 ■1年未満解約時、賃料1ヶ月分の違約金有 ■保証会社利用必須※大手法人契約の場合は敷金2ヶ月 ■セカンドハウス利用不可 | ||
| 周辺施設 |
コンビニ距離413m、スーパー距離537m、病院距離1,190m |
||
| 物件番号 | 963404 | 取引態様 | 仲介 |
| 情報更新日 | 2026年02月09日 | ||
| 物件番号 | |||
敷金・礼金・家賃・入居時期時期など、何でもご相談ください!
山手線・東京メトロ南北線沿線でのお部屋探しなら
当店にお任せください!
ハウス・トゥ・ハウス駒込店で元気にお待ちしております!







