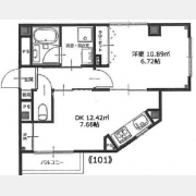
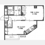
賃貸マンション・アパート物件検索結果
45棟 98部屋 の物件がヒットしました。
| 物件種別 | アパート | ||
|---|---|---|---|
| 所在地 | 東京都文京区大塚4丁目 17-2 | ||
| 交通 |
東京メトロ丸ノ内線「新大塚駅」 徒歩7分 東京メトロ丸ノ内線「茗荷谷駅」 徒歩11分 東京メトロ有楽町線「護国寺駅」 徒歩13分 |
||
| 築年数 | 築7年 | 構造 | 木造 |
| 総戸数 | - | 階建 | 3階 |
| 物件種別 | マンション | ||
|---|---|---|---|
| 所在地 | 東京都北区赤羽西2丁目6-3 | ||
| 交通 |
JR京浜東北・根岸線「赤羽駅」 徒歩5分 東京メトロ南北線「赤羽岩淵駅」 徒歩16分 |
||
| 築年数 | 築8年 | 構造 | 鉄骨造 |
| 総戸数 | - | 階建 | 3階 |
| 物件種別 | マンション | ||
|---|---|---|---|
| 所在地 | 東京都板橋区大山金井町30-6 | ||
| 交通 |
東武東上線「大山(東京)駅」 徒歩7分 都営三田線「板橋区役所前駅」 徒歩12分 |
||
| 築年数 | 築1年以内 | 構造 | RC(鉄筋コンクリート) |
| 総戸数 | - | 階建 | 5階 |
| 物件種別 | マンション | ||
|---|---|---|---|
| 所在地 | 東京都北区滝野川1丁目88-5 | ||
| 交通 |
都営三田線「西巣鴨駅」 徒歩6分 JR京浜東北・根岸線「王子駅」 徒歩16分 |
||
| 築年数 | 築1年以内 | 構造 | RC(鉄筋コンクリート) |
| 総戸数 | - | 階建 | 5階 |
| 物件種別 | マンション | ||
|---|---|---|---|
| 所在地 | 東京都北区上中里2丁目42-9 | ||
| 交通 |
JR京浜東北・根岸線「上中里駅」 徒歩6分 JR京浜東北・根岸線「王子駅」 徒歩11分 JR高崎線「尾久駅」 徒歩12分 |
||
| 築年数 | 築1年以内 | 構造 | RC(鉄筋コンクリート) |
| 総戸数 | - | 階建 | 5階 |
| 物件種別 | マンション | ||
|---|---|---|---|
| 所在地 | 東京都豊島区池袋本町2丁目38-18 | ||
| 交通 |
東武東上線「下板橋駅」 徒歩7分 JR埼京線「板橋駅」 徒歩14分 |
||
| 築年数 | 築2年 | 構造 | RC(鉄筋コンクリート) |
| 総戸数 | 11戸 | 階建 | 4階 |
| 物件種別 | マンション | ||
|---|---|---|---|
| 所在地 | 東京都北区滝野川5丁目43-8 | ||
| 交通 |
都営三田線「新板橋駅」 徒歩5分 JR埼京線「板橋駅」 徒歩7分 東武東上線「下板橋駅」 徒歩16分 |
||
| 築年数 | 築5年 | 構造 | RC(鉄筋コンクリート) |
| 総戸数 | - | 階建 | 5階 |
| 物件種別 | マンション | ||
|---|---|---|---|
| 所在地 | 東京都板橋区赤塚6丁目7-20 | ||
| 交通 |
東武東上線「下赤塚駅」 徒歩9分 東京メトロ有楽町線「地下鉄赤塚駅」 徒歩11分 |
||
| 築年数 | 築1年以内 | 構造 | RC(鉄筋コンクリート) |
| 総戸数 | - | 階建 | 4階 |
| 物件種別 | マンション | ||
|---|---|---|---|
| 所在地 | 東京都文京区本郷1丁目8-1 | ||
| 交通 |
都営三田線「水道橋駅」 徒歩3分 東京メトロ丸ノ内線「本郷三丁目駅」 徒歩7分 |
||
| 築年数 | 築1年 | 構造 | RC(鉄筋コンクリート) |
| 総戸数 | - | 階建 | 5階 (B1階) |
| 物件種別 | マンション | ||
|---|---|---|---|
| 所在地 | 東京都北区上十条1丁目7-18 | ||
| 交通 |
JR埼京線「十条(東京)駅」 徒歩5分 JR京浜東北・根岸線「東十条駅」 徒歩11分 |
||
| 築年数 | 築1年以内 | 構造 | 鉄骨造 |
| 総戸数 | - | 階建 | 3階 |






