ラフィスタ中板橋301 3階 | 1K | 9.55万円
セブンイレブン 板橋弥生町店まで徒歩6分と近場にコンビニがあるのもポイント。室内設備はCS・システム
| 賃料 | 9.55万円 | 管理費・共益費 | 1.5万円 |
|---|---|---|---|
| 敷金/礼金 | 1ヶ月 / 1ヶ月 | 専有面積 | 25.77m² |
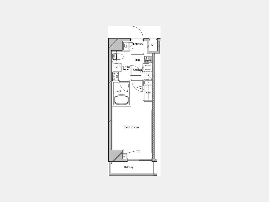
| 間取り | 1K | 階建 | 3階/10階建 |
ラフィスタ中板橋301の詳細
| 物件種別 | マンション | ||
|---|---|---|---|
| 賃料 | 9.55万円 | 管理費・共益費 | 1.5万円 |
| 敷金/保証金 | 1ヶ月 / - | 礼金/償却・敷引 | 1ヶ月 / - |
| 更新料 | 1.5ヶ月 | ||
| その他費用 |
契約事務手数料:11,000円 室内抗菌処理代:17,600円 入居中サポート:21,450円 鍵交換費用:22,000円 室内清掃費用:66,000円 |
||
| 所在地 | 東京都板橋区大谷口北町10-4 | ||
| 交通 | |||
| 間取り | 1K | 間取り内訳 |
洋室 1 室 K 1 室 |
| 専有面積 | 25.77m² | バルコニー面積 | |
| 築年月(築年数) | 2017年05月(築8年) | 方位 | 北西 |
| 建物構造 | RC(鉄筋コンクリート) | 所在階/階建 | 3階/10階建 |
| 総戸数 | - | 駐車場 | |
| 保険料 | 要 23,000円 2年 | 契約期間 | 2年間 |
| 現況(予定年月) | 2026年04月上旬 | ||
| 管理 | |||
| 設備・条件 | 2階以上、角部屋、システムキッチン、バス・トイレ別、温水洗浄便座、浴室乾燥機、室内洗濯機置き場、フローリング、エアコン、バルコニー、分譲賃貸、ペット相談、2人入居相談、インターネット対応、BSアンテナ、CSアンテナ、オートロック、TVドアホン、宅配ボックス、バイク置き場、駐輪場、エレベータ、都市ガス | ||
| 備考 | 敷金償却。解約予告2ヶ月前。更新事務手数料22000円。短期解約違約金:1年未満は総賃料の1ヶ月分。2人入居:共益費1000円増。ペット:共益費3500円増(犬・猫いずれか1匹、成長時体長50cm以下・体高30cm以下)。Wi-Fiインターネット無料(シーファイブ)。入居時誓約書提出あり。指定電力案内あり。 | ||
| 周辺施設 |
コンビニ距離76m、スーパー距離349m、病院距離415m |
||
| 物件番号 | 988603 | 取引態様 | 仲介 |
| 情報更新日 | 2026年02月08日 | ||
| 物件番号 | |||
敷金・礼金・家賃・入居時期時期など、何でもご相談ください!
3路線3駅利用可の板橋エリアでお部屋探し♪
ハウス・トゥ・ハウス板橋東口店で元気にお待ちしております!







