ラフィスタ本蓮沼311 3階 | 1K | 9万円
オートロック・宅配ボックス付き♪
| 賃料 | 9万円 | 管理費・共益費 | 1.5万円 |
|---|---|---|---|
| 敷金/礼金 | 1ヶ月 / 1ヶ月 | 専有面積 | 25.74m² |
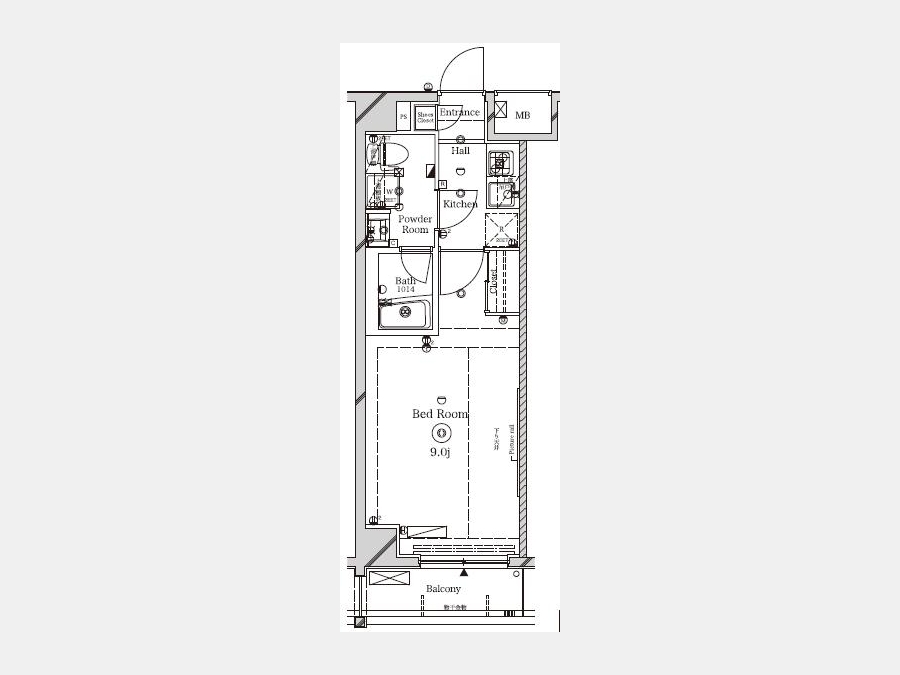
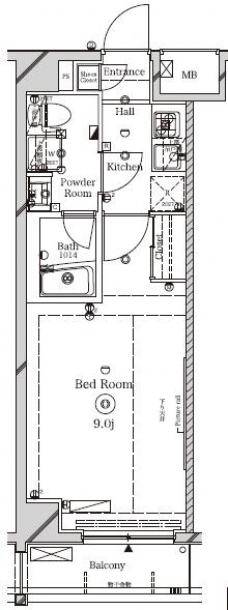
| 間取り | 1K | 階建 | 3階/7階建 |
ラフィスタ本蓮沼311の詳細
| 物件種別 | マンション | ||
|---|---|---|---|
| 賃料 | 9万円 | 管理費・共益費 | 1.5万円 |
| 敷金/保証金 | 1ヶ月 / - | 礼金/償却・敷引 | 1ヶ月 / - |
| 更新料 | 1.5ヶ月 | ||
| その他費用 |
入居中サポート:21,450円 抗菌代:17,600円 事務手数料:11,000円 鍵交換費用:22,000円 |
||
| 所在地 | 東京都板橋区大原町46-5 | ||
| 交通 | |||
| 間取り | 1K | 間取り内訳 | |
| 専有面積 | 25.74m² | バルコニー面積 | |
| 築年月(築年数) | 2016年03月(築9年) | 方位 | 西 |
| 建物構造 | RC(鉄筋コンクリート) | 所在階/階建 | 3階/7階建 |
| 総戸数 | 75戸 | 駐車場 | |
| 保険料 | 要 23,000円 2年 | 契約期間 | 2年間 |
| 現況(予定年月) | 2026年04月中旬 | ||
| 管理 | |||
| 設備・条件 | 2階以上、システムキッチン、バス・トイレ別、温水洗浄便座、浴室乾燥機、室内洗濯機置き場、フローリング、エアコン、バルコニー、保証人不要、2人入居相談、BSアンテナ、CSアンテナ、CATV、オートロック、TVドアホン、宅配ボックス、バイク置き場、駐輪場、エレベータ、都市ガス、デザイナーズ | ||
| 備考 | お車でご案内いたします。ご来店お待ちしております。 | ||
| 周辺施設 |
コンビニ距離239m、スーパー距離276m、病院距離796m |
||
| 物件番号 | 995111 | 取引態様 | 仲介 |
| 情報更新日 | 2026年02月25日 | ||
| 物件番号 | |||
敷金・礼金・家賃・入居時期時期など、何でもご相談ください!
都営三田線でのお部屋探しなら当店にお任せください!
ハウス・トゥ・ハウス志村坂上店で元気にお待ちしております!







