プライムメゾン大塚1507 15階 | 1K | 13.5万円
お車でご案内いたします。お気軽にお問い合わせください。
| 賃料 | 13.5万円 | 管理費・共益費 | 1万円 |
|---|---|---|---|
| 敷金/礼金 | 1ヶ月 / なし | 専有面積 | 25.13m² |
| 間取り | 1K | 階建 | 15階/19階建 |
プライムメゾン大塚1507の詳細
| 物件種別 | マンション | ||
|---|---|---|---|
| 賃料 | 13.5万円 | 管理費・共益費 | 1万円 |
| 敷金/保証金 | 1ヶ月 / - | 礼金/償却・敷引 | なし / - |
| 更新料 | 1ヶ月 | ||
| その他費用 | 鍵交換費用:27,500円 | ||
| 所在地 | 東京都豊島区北大塚1丁目15-1 | ||
| 交通 | |||
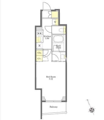
| 間取り | 1K | 間取り内訳 |
洋室 7.7 畳 1 室 |
| 専有面積 | 25.13m² | バルコニー面積 | |
| 築年月(築年数) | 2017年01月(築9年) | 方位 | 南 |
| 建物構造 | RC(鉄筋コンクリート) | 所在階/階建 | 15階/19階建 |
| 総戸数 | - | 駐車場 | 空無 |
| 保険料 | 要 | 契約期間 | 2年間 |
| 現況(予定年月) | 2026年03月下旬 | ||
| 管理 | |||
| 設備・条件 | 2階以上、南向き部屋、システムキッチン、バス・トイレ別、温水洗浄便座、浴室乾燥機、室内洗濯機置き場、フローリング、エアコン、バルコニー、礼金なし、保証人不要、インターネット対応、オートロック、TVドアホン、防犯カメラ、宅配ボックス、バイク置き場、駐輪場、エレベータ、都市ガス | ||
| 備考 | シャーメゾンライフSUPPORT241320円(月額) ◆1年未満の解約時は賃料等1ヶ月分の短期解約違約金あり | ||
| 周辺施設 |
コンビニ距離59m、スーパー距離266m、病院距離171m |
||
| 物件番号 | 984057 | 取引態様 | 仲介 |
| 情報更新日 | 2026年01月30日 | ||
| 物件番号 | |||
敷金・礼金・家賃・入居時期時期など、何でもご相談ください!
歴史と情緒が薫る街・西日暮里でお部屋探し♪
ハウス・トゥ・ハウス西日暮里店で元気にお待ちしております!







