スカイティアラ ウエスト710 6階 | 2SLDK | 23.8万円
多種多様な賃貸情報を取り扱っております。ご要望や不明な点などございましたら、お気軽にご連絡下さい。
| 賃料 | 23.8万円 | 管理費・共益費 | 1.2万円 |
|---|---|---|---|
| 敷金/礼金 | 2ヶ月 / 1ヶ月 | 専有面積 | 72.12m² |
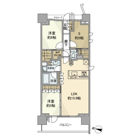
| 間取り | 2SLDK | 階建 | 6階/18階建 |
スカイティアラ ウエスト710の詳細
| 物件種別 | マンション | ||
|---|---|---|---|
| 賃料 | 23.8万円 | 管理費・共益費 | 1.2万円 |
| 敷金/保証金 | 2ヶ月 / - | 礼金/償却・敷引 | 1ヶ月 / - |
| 更新料 | - | ||
| その他費用 | 除菌施工料:19,800円 | ||
| 所在地 | 東京都板橋区小豆沢1丁目2-19 | ||
| 交通 | |||
| 間取り | 2SLDK | 間取り内訳 |
LDK 15.9 畳 S 5 畳 洋室 5 畳 洋室 6 畳 |
| 専有面積 | 72.12m² | バルコニー面積 | |
| 築年月(築年数) | 2015年04月(築10年) | 方位 | 西 |
| 建物構造 | RC(鉄筋コンクリート) | 所在階/階建 | 6階/18階建 |
| 総戸数 | - | 駐車場 |
空有1台/-22,000円 駐車場登録料11000円 |
| 保険料 | 要 25,500円 2年 | 契約期間 | 2032年3月まで |
| 現況(予定年月) | 2026年04月上旬 | ||
| 管理 | |||
| 設備・条件 | 2階以上、システムキッチン、カウンターキッチン、バス・トイレ別、浴室乾燥機、追い焚き、室内洗濯機置き場、フローリング、エアコン、ウォークインクローゼット、バルコニー、分譲賃貸、楽器相談、2人入居相談、CATV、オートロック、TVドアホン、宅配ボックス、駐輪場、エレベータ | ||
| 備考 | リロサポプラス加入料2500円(月額) 定期借家、2032年3月31日迄。 退去時クリーニング費用負担有。 6ヶ月未満の解約は0.5ヶ月分の短期解約違約金有。 | ||
| 周辺施設 |
コンビニ距離401m、スーパー距離454m、病院距離305m |
||
| 物件番号 | 1003547 | 取引態様 | 仲介 |
| 情報更新日 | 2026年03月14日 | ||
| 物件番号 | |||
敷金・礼金・家賃・入居時期時期など、何でもご相談ください!
JR山手線・巣鴨駅から徒歩1分!
ハウス・トゥ・ハウス巣鴨店で元気にお待ちしております!







