レピュア小石川レジデンスⅡ501 5階 | 1LDK | 21.5万円
共用部には宅配ボックスが付いているため、対面で荷物を受け取る必要がありません。室内設備は浴室乾燥機・
| 賃料 | 21.5万円 | 管理費・共益費 | 1.5万円 |
|---|---|---|---|
| 敷金/礼金 | なし / なし | 専有面積 | 36.94m² |
| 間取り | 1LDK | 階建 | 5階/5階建 |
レピュア小石川レジデンスⅡ501の詳細
| 物件種別 | マンション | ||
|---|---|---|---|
| 賃料 | 21.5万円 | 管理費・共益費 | 1.5万円 |
| 敷金/保証金 | なし / - | 礼金/償却・敷引 | なし / - |
| 更新料 | 1ヶ月 | ||
| その他費用 |
くらしあんしんサポート24(2年間):16,500円 退去時クリーニング費用(前払い):68,000円 |
||
| 所在地 | 東京都文京区白山3丁目6以下未定 | ||
| 交通 | |||
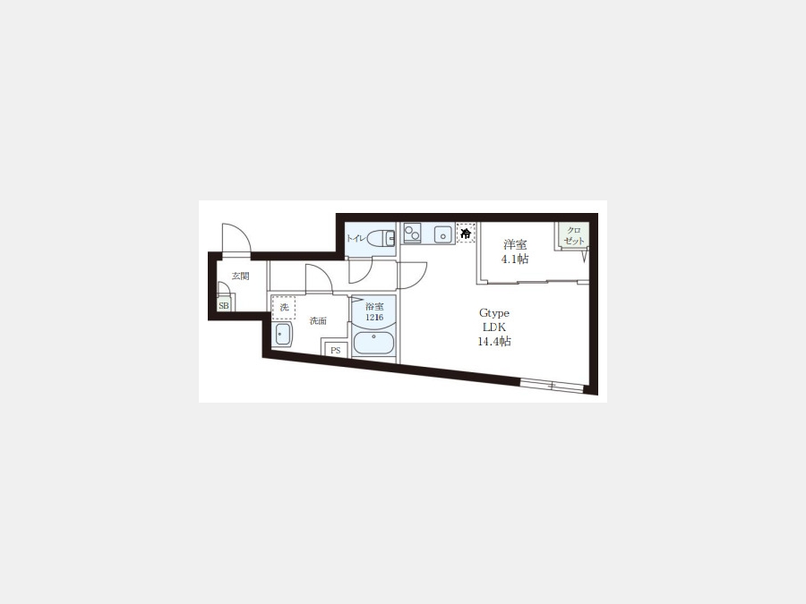
| 間取り | 1LDK | 間取り内訳 |
洋室 4.1 畳 LDK 14.4 畳 |
| 専有面積 | 36.94m² | バルコニー面積 | |
| 築年月(築年数) | 2026年03月(新築) | 方位 | - |
| 建物構造 | RC(鉄筋コンクリート) | 所在階/階建 | 5階/5階建 |
| 総戸数 | 18戸 | 駐車場 | |
| 保険料 | 要 17,000円 2年 | 契約期間 | 2年間 |
| 現況(予定年月) | 2026年03月下旬 | ||
| 管理 | |||
| 設備・条件 | 2階以上、最上階、システムキッチン、カウンターキッチン、バス・トイレ別、温水洗浄便座、浴室乾燥機、室内洗濯機置き場、エアコン、礼金なし、敷金なし、保証人不要、ペット相談、インターネット対応、オートロック、TVドアホン、宅配ボックス、都市ガス | ||
| 備考 | ■ペット相談可:小型犬もしくは猫どちらか1匹まで(敷金1ヶ月積み増し)・成長時 体高50cm以下かつ体重10kg以内 ■全住戸ネット無料1Gbps:ベストエフォート ■短期解約違約金あり | ||
| 周辺施設 |
コンビニ距離157m、スーパー距離132m、病院距離804m |
||
| 物件番号 | 1001913 | 取引態様 | 仲介 |
| 情報更新日 | 2026年03月10日 | ||
| 物件番号 | |||
敷金・礼金・家賃・入居時期時期など、何でもご相談ください!
山手線・東京メトロ南北線沿線でのお部屋探しなら
当店にお任せください!
ハウス・トゥ・ハウス駒込店で元気にお待ちしております!







