ソルナクレイシア雑司が谷202 1階 | 2LDK | 14.9万円
2026年3月完成予定の新築マンションです
| 賃料 | 14.9万円 | 管理費・共益費 | 1.5万円 |
|---|---|---|---|
| 敷金/礼金 | なし / 1ヶ月 | 専有面積 | 40.62m² |
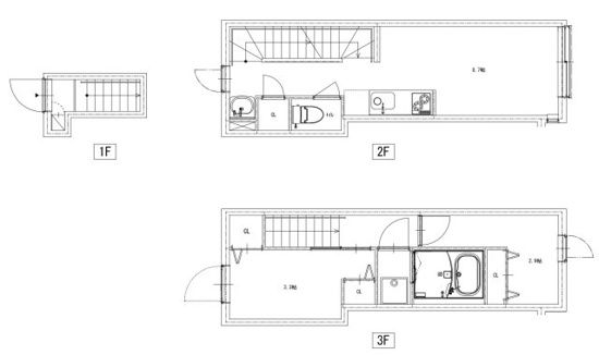
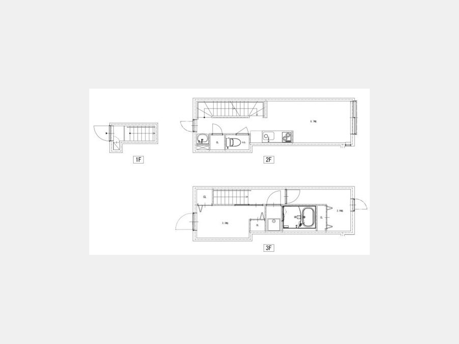
| 間取り | 2LDK | 階建 | 1階/3階建 |
ソルナクレイシア雑司が谷202の詳細
| 物件種別 | アパート | ||
|---|---|---|---|
| 賃料 | 14.9万円 | 管理費・共益費 | 1.5万円 |
| 敷金/保証金 | なし / - | 礼金/償却・敷引 | 1ヶ月 / - |
| 更新料 | 1ヶ月 | ||
| その他費用 |
24時間メンテナンスサービス:16,500円 クリーニング代(契約時):66,000円 |
||
| 所在地 | 東京都豊島区雑司が谷2丁目3-10 | ||
| 交通 | |||
| 間取り | 2LDK | 間取り内訳 |
LDK 8.7 畳 洋室 2.9 畳 洋室 3.3 畳 |
| 専有面積 | 40.62m² | バルコニー面積 | |
| 築年月(築年数) | 2026年03月(新築) | 方位 | - |
| 建物構造 | 鉄骨造 | 所在階/階建 | 1階/3階建 |
| 総戸数 | - | 駐車場 | |
| 保険料 | 要 26,000円 2年 | 契約期間 | 2年間 |
| 現況(予定年月) | 2026年03月上旬 | ||
| 管理 | |||
| 設備・条件 | 1階、システムキッチン、バス・トイレ別、温水洗浄便座、追い焚き、室内洗濯機置き場、エアコン、敷金なし、保証人不要、BSアンテナ、CSアンテナ、TVドアホン | ||
| 備考 | ◆1年未満の解約時は賃料等1ヶ月分の短期解約違約金あり ◆解約予告1か月前 | ||
| 周辺施設 |
コンビニ距離105m、スーパー距離119m、病院距離1,119m |
||
| 物件番号 | 997558 | 取引態様 | 仲介 |
| 情報更新日 | 2026年03月02日 | ||
| 物件番号 | |||
敷金・礼金・家賃・入居時期時期など、何でもご相談ください!
JR山手線・巣鴨駅から徒歩1分!
ハウス・トゥ・ハウス巣鴨店で元気にお待ちしております!







