貸戸建住宅 北区上十条5丁目1 階 | 3DK | 13.8万円
歩いて徒歩5分の場所にOK(オーケー) 十条店があるのもポイント。新社会人になる方。引越し前の頭金が
| 賃料 | 13.8万円 | 管理費・共益費 | 1万円 |
|---|---|---|---|
| 敷金/礼金 | 1ヶ月 / なし | 専有面積 | 43.78m² |
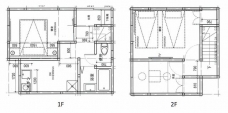
| 間取り | 3DK | 階建 | 階/2階建 |
貸戸建住宅 北区上十条5丁目1の詳細
| 物件種別 | 一戸建 | ||
|---|---|---|---|
| 賃料 | 13.8万円 | 管理費・共益費 | 1万円 |
| 敷金/保証金 | 1ヶ月 / - | 礼金/償却・敷引 | なし / - |
| 更新料 | 1ヶ月 | ||
| その他費用 | - | ||
| 所在地 | 東京都北区上十条5丁目34-1 | ||
| 交通 |
JR京浜東北・根岸線「東十条駅」 徒歩15分 |
||
| 間取り | 3DK | 間取り内訳 | |
| 専有面積 | 43.78m² | バルコニー面積 | |
| 築年月(築年数) | 1966年11月(築59年) | 方位 | - |
| 建物構造 | 木造 | 所在階/階建 | 階/2階建 |
| 総戸数 | 1戸 | 駐車場 | |
| 保険料 | 要 23,000円 2年 | 契約期間 | 2年間 |
| 現況(予定年月) | 即時 | ||
| 管理 | |||
| 設備・条件 | システムキッチン、バス・トイレ別、温水洗浄便座、室内洗濯機置き場、エアコン、即入居可、礼金なし、保証人不要、 | ||
| 備考 | 掲載情報と現況が異なる場合は、現況を優先とします。 | ||
| 周辺施設 |
コンビニ距離473m、スーパー距離340m、病院距離925m |
||
| 物件番号 | 995869 | 取引態様 | 仲介 |
| 情報更新日 | 2026年02月26日 | ||
| 物件番号 | |||
敷金・礼金・家賃・入居時期時期など、何でもご相談ください!
学生さんのお部屋探しも全力でバックアップ!
ハウス・トゥ・ハウス十条店で元気にお待ちしております!







