(仮称)大山金井町賃貸住宅301 3階 | 1LDK | 11.4万円
日々の暮らしに便利なまいばすけっと 板橋熊野町店(スーパー)まで185mです。室内設備はフローリング
| 賃料 | 11.4万円 | 管理費・共益費 | 0.3万円 |
|---|---|---|---|
| 敷金/礼金 | 1ヶ月 / 1ヶ月 | 専有面積 | 30.22m² |
| 間取り | 1LDK | 階建 | 3階/3階建 |
(仮称)大山金井町賃貸住宅301の詳細
| 物件種別 | アパート | ||
|---|---|---|---|
| 賃料 | 11.4万円 | 管理費・共益費 | 0.3万円 |
| 敷金/保証金 | 1ヶ月 / - | 礼金/償却・敷引 | 1ヶ月 / - |
| 更新料 | 1ヶ月 | ||
| その他費用 | - | ||
| 所在地 | 東京都板橋区大山金井町48- | ||
| 交通 | |||
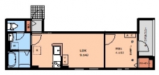
| 間取り | 1LDK | 間取り内訳 |
LDK 9.1 畳 1 室 洋室 4.1 畳 1 室 |
| 専有面積 | 30.22m² | バルコニー面積 | |
| 築年月(築年数) | 2026年03月(新築) | 方位 | 東 |
| 建物構造 | 木造 | 所在階/階建 | 3階/3階建 |
| 総戸数 | 8戸 | 駐車場 | |
| 保険料 | 要 | 契約期間 | 2年間 |
| 現況(予定年月) | 2026年03月 | ||
| 管理 | |||
| 設備・条件 | 2階以上、最上階、システムキッチン、バス・トイレ別、温水洗浄便座、浴室乾燥機、追い焚き、室内洗濯機置き場、フローリング、エアコン、オートロック、TVドアホン、宅配ボックス、都市ガス | ||
| 備考 | 24時間サポート1000円(月額) 火災保険1000円(月額) 駐輪ステッカー500円/枚。 太陽光発電(余剰売電無し)。 | ||
| 周辺施設 |
コンビニ距離80m、スーパー距離185m、病院距離434m |
||
| 物件番号 | 998310 | 取引態様 | 仲介 |
| 情報更新日 | 2026年03月03日 | ||
| 物件番号 | |||
敷金・礼金・家賃・入居時期時期など、何でもご相談ください!
池袋まで埼京線で5分というアクセス利便性が魅力★
ハウス・トゥ・ハウス板橋店で元気にお待ちしております!







