リビオメゾン湯島501 5階 | 2LDK | 28.5万円
多種多様な賃貸情報を取り扱っております。ご要望や不明な点などございましたら、お気軽にご連絡下さい。
| 賃料 | 28.5万円 | 管理費・共益費 | 1.5万円 |
|---|---|---|---|
| 敷金/礼金 | 1ヶ月 / なし | 専有面積 | 42.50m² |
| 間取り | 2LDK | 階建 | 5階/5階建 |
リビオメゾン湯島501の詳細
| 物件種別 | マンション | ||
|---|---|---|---|
| 賃料 | 28.5万円 | 管理費・共益費 | 1.5万円 |
| 敷金/保証金 | 1ヶ月 / - | 礼金/償却・敷引 | なし / - |
| 更新料 | 1ヶ月 | ||
| その他費用 | 室内清掃費用:65,450円 | ||
| 所在地 | 東京都文京区湯島4丁目27-1、8 | ||
| 交通 | |||
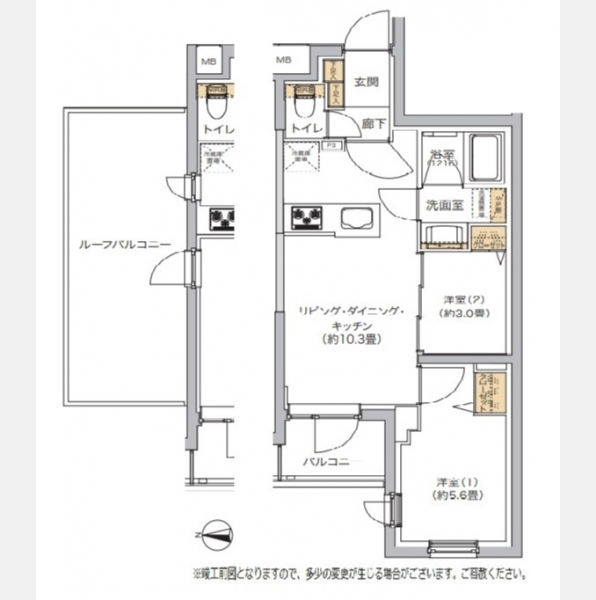
| 間取り | 2LDK | 間取り内訳 |
洋室 5.6 畳 洋室 3 畳 LDK 10.3 畳 |
| 専有面積 | 42.50m² | バルコニー面積 | |
| 築年月(築年数) | 2026年03月(建築中) | 方位 | 北 |
| 建物構造 | RC(鉄筋コンクリート) | 所在階/階建 | 5階/5階建 |
| 総戸数 | 36戸 | 駐車場 | 無 |
| 保険料 | 要 | 契約期間 | 2年間 |
| 現況(予定年月) | 2026年03月中旬 | ||
| 管理 | |||
| 設備・条件 | 2階以上、最上階、角部屋、システムキッチン、カウンターキッチン、バス・トイレ別、浴室乾燥機、室内洗濯機置き場、フローリング、エアコン、バルコニー、礼金なし、ペット相談、2人入居相談、BSアンテナ、CSアンテナ、オートロック、宅配ボックス、バイク置き場、エレベータ | ||
| 備考 | 口座振替手数料220円(月額) ■1年未満解約違約金有(賃料1ヶ月分) ■ペット小型犬1匹もしくは猫1匹まで(敷金1ヶ月積み増し) | ||
| 周辺施設 |
コンビニ距離365m、スーパー距離654m、病院距離678m |
||
| 物件番号 | 995848 | 取引態様 | 仲介 |
| 情報更新日 | 2026年02月25日 | ||
| 物件番号 | |||
敷金・礼金・家賃・入居時期時期など、何でもご相談ください!
歴史と情緒が薫る街・西日暮里でお部屋探し♪
ハウス・トゥ・ハウス西日暮里店で元気にお待ちしております!







