パークホームズ板橋蓮根 二番街204 2階 | 3LDK | 25万円
室内設備は洗面化粧台・浴室乾燥機・食器洗乾燥機など充実した設備を備え付けています。
| 賃料 | 25万円 | 管理費・共益費 | なし |
|---|---|---|---|
| 敷金/礼金 | 2ヶ月 / 1ヶ月 | 専有面積 | 67.62m² |
| 間取り | 3LDK | 階建 | 2階/11階建 |
パークホームズ板橋蓮根 二番街204の詳細
| 物件種別 | マンション | ||
|---|---|---|---|
| 賃料 | 25万円 | 管理費・共益費 | なし |
| 敷金/保証金 | 2ヶ月 / - | 礼金/償却・敷引 | 1ヶ月 / - |
| 更新料 | - | ||
| その他費用 | 除菌施工料:19,800円 | ||
| 所在地 | 東京都板橋区蓮根3丁目26-12 | ||
| 交通 | |||
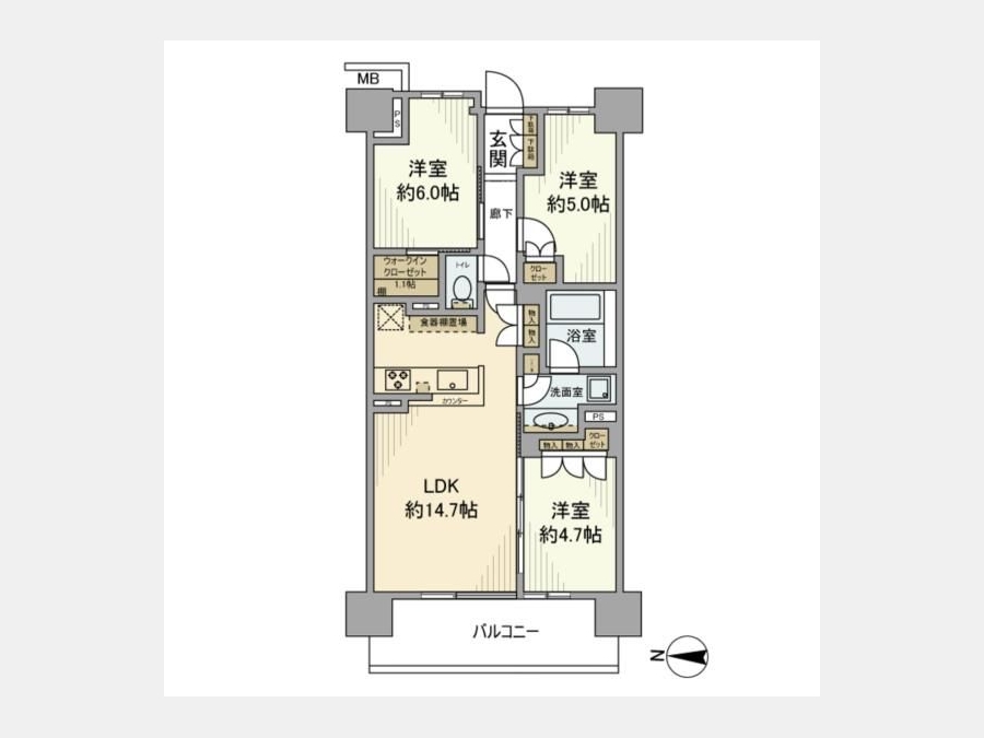
| 間取り | 3LDK | 間取り内訳 |
LDK 14.7 畳 1 室 洋室 4.7 畳 1 室 洋室 5 畳 1 室 洋室 6 畳 1 室 |
| 専有面積 | 67.62m² | バルコニー面積 | |
| 築年月(築年数) | 2017年01月(築9年) | 方位 | 西 |
| 建物構造 | RC(鉄筋コンクリート) | 所在階/階建 | 2階/11階建 |
| 総戸数 | - | 駐車場 | 無 |
| 保険料 | 要 25,500円 2年 | 契約期間 | 3年間 |
| 現況(予定年月) | 2026年04月上旬 | ||
| 管理 | |||
| 設備・条件 | 2階以上、システムキッチン、バス・トイレ別、浴室乾燥機、追い焚き、室内洗濯機置き場、フローリング、ウォークインクローゼット、分譲賃貸、楽器相談、CATV、オートロック、TVドアホン、宅配ボックス、駐輪場、エレベータ | ||
| 備考 | リロサポプラス加入料(月額)2500円(月額) 6ヶ月未満で解約した場合、賃料の0.5ヶ月分を申し受けます。 | ||
| 周辺施設 | |||
| 物件番号 | 992898 | 取引態様 | 仲介 |
| 情報更新日 | 2026年02月20日 | ||
| 物件番号 | |||
敷金・礼金・家賃・入居時期時期など、何でもご相談ください!
3路線3駅利用可の板橋エリアでお部屋探し♪
ハウス・トゥ・ハウス板橋東口店で元気にお待ちしております!







