グランソフィア川口東領家 A- 1階 | 3LDK | 15万円
| 賃料 | 15万円 | 管理費・共益費 | なし |
|---|---|---|---|
| 敷金/礼金 | 1ヶ月 / 1ヶ月 | 専有面積 | 66.24m² |
| 間取り | 3LDK | 階建 | 1階/2階建 |
グランソフィア川口東領家 A-の詳細
| 物件種別 | 一戸建 | ||
|---|---|---|---|
| 賃料 | 15万円 | 管理費・共益費 | なし |
| 敷金/保証金 | 1ヶ月 / - | 礼金/償却・敷引 | 1ヶ月 / - |
| 更新料 | 1ヶ月 | ||
| その他費用 |
ホームマイスター24:16,500円 鍵交換費用:27,500円 室内清掃費用:115,500円 |
||
| 所在地 | 埼玉県川口市東領家4丁目2-6-1 | ||
| 交通 |
日暮里・舎人ライナー「谷在家駅」 徒歩22分 日暮里・舎人ライナー「舎人公園駅」 徒歩25分 |
||
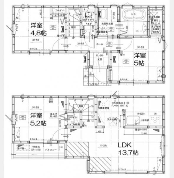
| 間取り | 3LDK | 間取り内訳 |
LDK 13.7 畳 洋室 5.2 畳 洋室 5 畳 洋室 4.8 畳 |
| 専有面積 | 66.24m² | バルコニー面積 | |
| 築年月(築年数) | 2024年07月(築1年) | 方位 | 南西 |
| 建物構造 | 木造 | 所在階/階建 | 1階/2階建 |
| 総戸数 | 1戸 | 駐車場 | 空有-台/- |
| 保険料 | 要 20,000円 | 契約期間 | 2年間 |
| 現況(予定年月) | 2026年03月上旬 | ||
| 管理 | |||
| 設備・条件 | システムキッチン、カウンターキッチン、バス・トイレ別、温水洗浄便座、浴室乾燥機、追い焚き、室内洗濯機置き場、フローリング、メゾネット、エアコン、バルコニー、保証人不要、ペット相談、TVドアホン、プロパンガス | ||
| 備考 | スマートキー利用料1650円(月額) | ||
| 周辺施設 |
コンビニ距離438m、スーパー距離700m、病院距離1,193m |
||
| 物件番号 | 991587 | 取引態様 | 仲介 |
| 情報更新日 | 2026年02月16日 | ||
| 物件番号 | |||
敷金・礼金・家賃・入居時期時期など、何でもご相談ください!
2024年12月新規オープン!南浦和駅東口から徒歩1分♪
ハウス・トゥ・ハウス南浦和店で元気にお待ちしております!







