パークアクシス池袋イースト306 3階 | 1LDK | 20.1万円
お車でご案内いたします。お気軽にお問い合わせください。
| 賃料 | 20.1万円 | 管理費・共益費 | 1.2万円 |
|---|---|---|---|
| 敷金/礼金 | 1ヶ月 / なし | 専有面積 | 33.96m² |
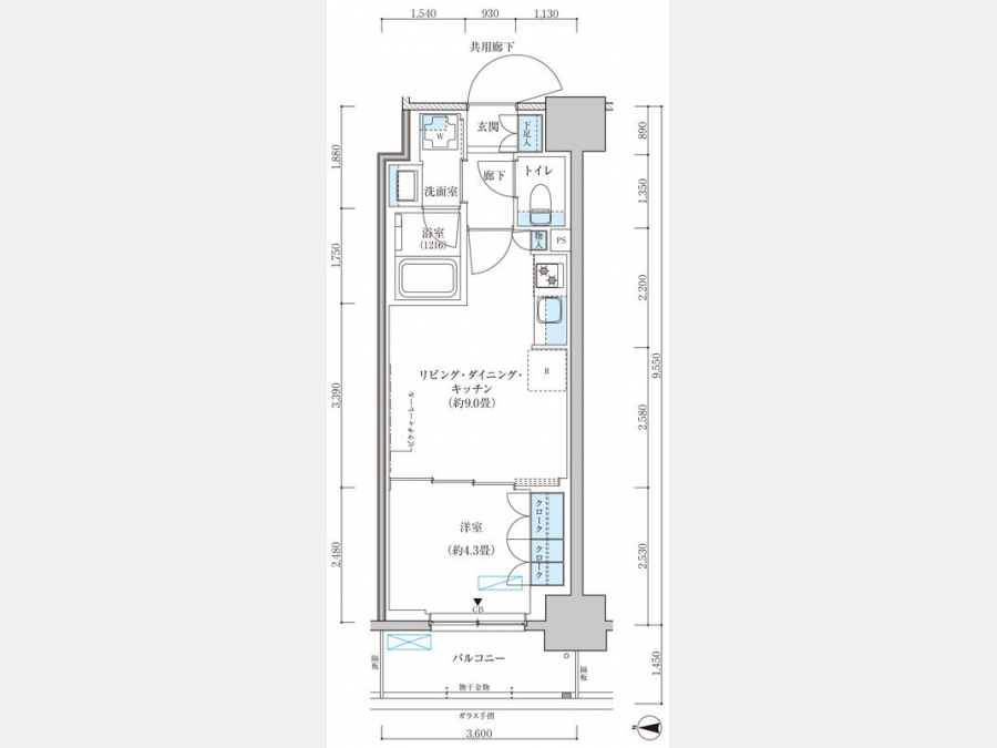
| 間取り | 1LDK | 階建 | 3階/12階建 |
パークアクシス池袋イースト306の詳細
| 物件種別 | マンション | ||
|---|---|---|---|
| 賃料 | 20.1万円 | 管理費・共益費 | 1.2万円 |
| 敷金/保証金 | 1ヶ月 / - | 礼金/償却・敷引 | なし / - |
| 更新料 | - | ||
| その他費用 | 室内清掃費用:59,400円 | ||
| 所在地 | 東京都豊島区東池袋3丁目13-5 | ||
| 交通 | |||
| 間取り | 1LDK | 間取り内訳 | |
| 専有面積 | 33.96m² | バルコニー面積 | |
| 築年月(築年数) | 2026年02月(新築) | 方位 | 西 |
| 建物構造 | RC(鉄筋コンクリート) | 所在階/階建 | 3階/12階建 |
| 総戸数 | 77戸 | 駐車場 | 無 |
| 保険料 | 要 | 契約期間 | 2年間 |
| 現況(予定年月) | 2026年03月中旬 | ||
| 管理 | |||
| 設備・条件 | 2階以上、システムキッチン、バス・トイレ別、浴室乾燥機、室内洗濯機置き場、フローリング、エアコン、バルコニー、礼金なし、ペット相談、楽器相談、BSアンテナ、CATV、オートロック、宅配ボックス、エレベータ | ||
| 備考 | 口座振替事務手数料220円(月額) ■定期借家2年契約:再契約相談可(再契約料:新賃料1ヶ月分) ■ペット相談可:敷金1ヶ月積増 ■短期解約違約金あり | ||
| 周辺施設 |
コンビニ距離128m、スーパー距離336m、病院距離878m |
||
| 物件番号 | 990533 | 取引態様 | 仲介 |
| 情報更新日 | 2026年02月15日 | ||
| 物件番号 | |||
敷金・礼金・家賃・入居時期時期など、何でもご相談ください!
JR山手線・巣鴨駅から徒歩1分!
ハウス・トゥ・ハウス巣鴨店で元気にお待ちしております!







