プライムメゾン入谷704 7階 | 2LDK | 26.3万円
ペット相談可♪礼金なしで初期費用抑えられます
| 賃料 | 26.3万円 | 管理費・共益費 | 1.5万円 |
|---|---|---|---|
| 敷金/礼金 | 1ヶ月 / なし | 専有面積 | 52.80m² |
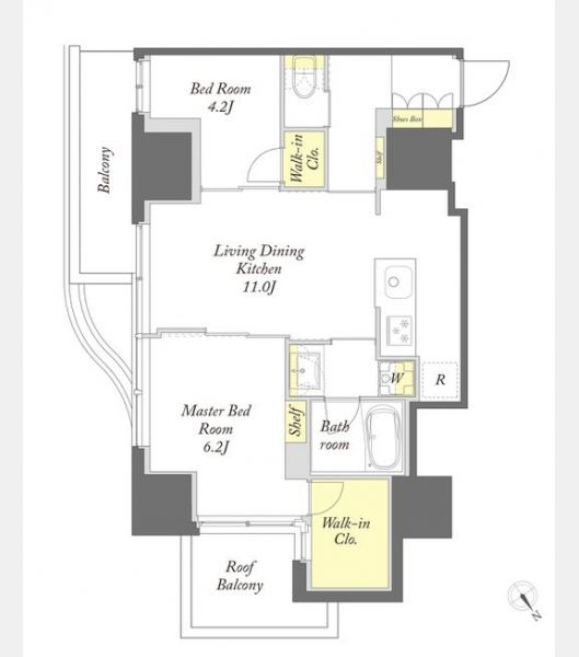
| 間取り | 2LDK | 階建 | 7階/14階建 |
プライムメゾン入谷704の詳細
| 物件種別 | マンション | ||
|---|---|---|---|
| 賃料 | 26.3万円 | 管理費・共益費 | 1.5万円 |
| 敷金/保証金 | 1ヶ月 / - | 礼金/償却・敷引 | なし / - |
| 更新料 | 1ヶ月 | ||
| その他費用 | 鍵交換費用:27,500円 | ||
| 所在地 | 東京都台東区入谷1丁目18-7 | ||
| 交通 | |||
| 間取り | 2LDK | 間取り内訳 | |
| 専有面積 | 52.80m² | バルコニー面積 | |
| 築年月(築年数) | 2024年02月(築2年) | 方位 | 南東 |
| 建物構造 | RC(鉄筋コンクリート) | 所在階/階建 | 7階/14階建 |
| 総戸数 | - | 駐車場 | 空有1台/-38,500円 |
| 保険料 | 要 18,000円 2年 | 契約期間 | 2年間 |
| 現況(予定年月) | 2026年02月下旬 | ||
| 管理 | |||
| 設備・条件 | 2階以上、システムキッチン、バス・トイレ別、温水洗浄便座、浴室乾燥機、追い焚き、室内洗濯機置き場、フローリング、エアコン、ウォークインクローゼット、バルコニー、礼金なし、ペット相談、インターネット対応、BSアンテナ、CSアンテナ、オートロック、TVドアホン、宅配ボックス、バイク置き場、駐輪場、エレベータ、都市ガス | ||
| 備考 | ペット相談可:小型犬または猫1匹まで、敷金1ヶ月追加 | ||
| 周辺施設 |
コンビニ距離187m、スーパー距離137m、病院距離726m |
||
| 物件番号 | 988676 | 取引態様 | 仲介 |
| 情報更新日 | 2026年02月08日 | ||
| 物件番号 | |||
敷金・礼金・家賃・入居時期時期など、何でもご相談ください!
歴史と情緒が薫る街・西日暮里でお部屋探し♪
ハウス・トゥ・ハウス西日暮里店で元気にお待ちしております!







