目白テラスドハウス1A 1階 | 2LDK | 26.8万円
ローソン 椎名町駅前店まで徒歩7分と近場にコンビニがあるのもポイント。知らない人が来た時でも玄関
| 賃料 | 26.8万円 | 管理費・共益費 | 0.5万円 |
|---|---|---|---|
| 敷金/礼金 | 1ヶ月 / なし | 専有面積 | 79.35m² |
| 間取り | 2LDK | 階建 | 1階/3階建 |
目白テラスドハウス1Aの詳細
| 物件種別 | マンション | ||
|---|---|---|---|
| 賃料 | 26.8万円 | 管理費・共益費 | 0.5万円 |
| 敷金/保証金 | 1ヶ月 / - | 礼金/償却・敷引 | なし / - |
| 更新料 | 1ヶ月 | ||
| その他費用 |
除菌・消臭施工代:18,700円 くらしーど24(2年):16,500円 鍵交換費用:16,500円 |
||
| 所在地 | 東京都豊島区目白4丁目13-16 | ||
| 交通 | |||
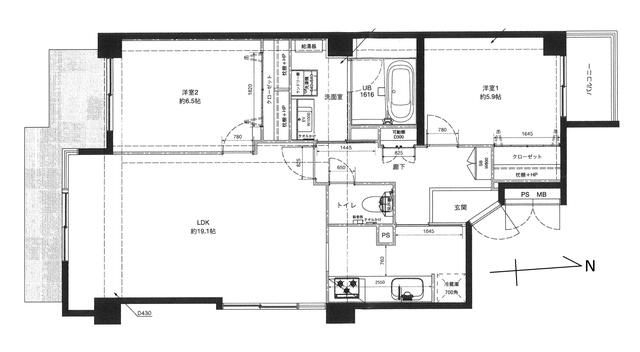
| 間取り | 2LDK | 間取り内訳 |
洋室 6.5 畳 1 室 洋室 5.9 畳 1 室 LDK 19.1 畳 1 室 |
| 専有面積 | 79.35m² | バルコニー面積 | |
| 築年月(築年数) | 1989年01月(築37年) | 方位 | 南 |
| 建物構造 | RC(鉄筋コンクリート) | 所在階/階建 | 1階/3階建 |
| 総戸数 | - | 駐車場 | |
| 保険料 | 要 26,000円 2年 | 契約期間 | 2年間 |
| 現況(予定年月) | 2026年03月中旬 | ||
| 管理 | |||
| 設備・条件 | 1階、角部屋、南向き部屋、システムキッチン、カウンターキッチン、バス・トイレ別、温水洗浄便座、室内洗濯機置き場、バルコニー、礼金なし、保証人不要、インターネット対応、CATV、TVドアホン、宅配ボックス、駐輪場、都市ガス、低層マンション | ||
| 備考 | 退去時のルームクリーニング費用(エアコン含む)借主負担。 短期解約違約金:1年未満は総賃料の1ヶ月分。 駐輪場あり(無料)。 喫煙不可。 DIY不可。 | ||
| 周辺施設 |
コンビニ距離335m、スーパー距離435m、病院距離451m |
||
| 物件番号 | 989747 | 取引態様 | 仲介 |
| 情報更新日 | 2026年02月11日 | ||
| 物件番号 | |||
敷金・礼金・家賃・入居時期時期など、何でもご相談ください!
3路線3駅利用可の板橋エリアでお部屋探し♪
ハウス・トゥ・ハウス板橋東口店で元気にお待ちしております!







