Alivis中野306 3階 | 1DK | 17.6万円
敷金礼金ゼロで初期費用を抑えられます!
| 賃料 | 17.6万円 | 管理費・共益費 | 1.5万円 |
|---|---|---|---|
| 敷金/礼金 | なし / なし | 専有面積 | 35.78m² |
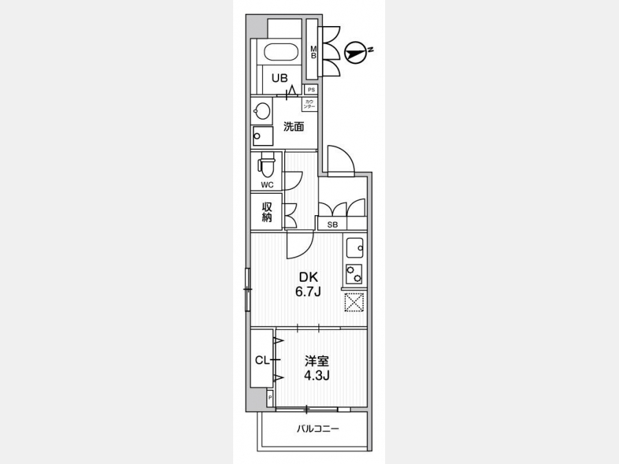
| 間取り | 1DK | 階建 | 3階/5階建 |
Alivis中野306の詳細
| 物件種別 | マンション | ||
|---|---|---|---|
| 賃料 | 17.6万円 | 管理費・共益費 | 1.5万円 |
| 敷金/保証金 | なし / - | 礼金/償却・敷引 | なし / - |
| 更新料 | 1ヶ月 | ||
| その他費用 | 室内清掃費用:51,700円 | ||
| 所在地 | 東京都中野区上高田2丁目1-10 | ||
| 交通 | |||
| 間取り | 1DK | 間取り内訳 | |
| 専有面積 | 35.78m² | バルコニー面積 | |
| 築年月(築年数) | 2025年11月(新築) | 方位 | 東 |
| 建物構造 | RC(鉄筋コンクリート) | 所在階/階建 | 3階/5階建 |
| 総戸数 | - | 駐車場 | 無 |
| 保険料 | 要 18,000円 2年 | 契約期間 | 2年間 |
| 現況(予定年月) | 即時 | ||
| 管理 | |||
| 設備・条件 | 2階以上、角部屋、システムキッチン、バス・トイレ別、温水洗浄便座、浴室乾燥機、室内洗濯機置き場、フローリング、エアコン、バルコニー、即入居可、礼金なし、敷金なし、ペット相談、インターネット対応、オートロック、宅配ボックス、駐輪場、エレベータ | ||
| 備考 | エアコンクリーニング費用:16500円/1台は借主負担です。 退去時鍵交換費用:33000円 1年未満解約の場合総賃料の1ヶ月分+フリーレント相当分の短期解約違約金あり。 ペット飼育相談可能飼育時敷金プラス1か月(小型犬か猫1匹まで) | ||
| 周辺施設 |
コンビニ距離1,093m、スーパー距離1,023m、病院距離1,184m |
||
| 物件番号 | 986896 | 取引態様 | 仲介 |
| 情報更新日 | 2026年02月07日 | ||
| 物件番号 | |||
敷金・礼金・家賃・入居時期時期など、何でもご相談ください!
山手線・京浜東北線の2路線が使える便利な街・田端!
ハウス・トゥ・ハウス田端店で元気にお待ちしております!







