ステラテラス1003 10階 | 2LDK | 27.9万円
共用部には宅配ボックス・ゴミ出し24時間OKなどが備わっておりとても充実しています。室内設備は浴室乾
| 賃料 | 27.9万円 | 管理費・共益費 | 2万円 |
|---|---|---|---|
| 敷金/礼金 | 1ヶ月 / なし | 専有面積 | 62.94m² |
| 間取り | 2LDK | 階建 | 10階/10階建 |
ステラテラス1003の詳細
| 物件種別 | マンション | ||
|---|---|---|---|
| 賃料 | 27.9万円 | 管理費・共益費 | 2万円 |
| 敷金/保証金 | 1ヶ月 / - | 礼金/償却・敷引 | なし / - |
| 更新料 | 1ヶ月 | ||
| その他費用 | - | ||
| 所在地 | 東京都北区王子1丁目8-8 | ||
| 交通 |
JR京浜東北・根岸線「王子駅」 徒歩4分 |
||
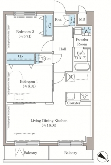
| 間取り | 2LDK | 間取り内訳 |
洋室 6.3 畳 洋室 5.7 畳 LDK 16 畳 |
| 専有面積 | 62.94m² | バルコニー面積 | |
| 築年月(築年数) | 2026年03月(建築中) | 方位 | 東 |
| 建物構造 | RC(鉄筋コンクリート) | 所在階/階建 | 10階/10階建 |
| 総戸数 | - | 駐車場 | |
| 保険料 | 要 | 契約期間 | 2年間 |
| 現況(予定年月) | 2026年03月中旬 | ||
| 管理 | |||
| 設備・条件 | 2階以上、最上階、システムキッチン、カウンターキッチン、バス・トイレ別、浴室乾燥機、追い焚き、室内洗濯機置き場、フローリング、エアコン、バルコニー、礼金なし、楽器相談、CATV、光ファイバー、オートロック、宅配ボックス、駐輪場、エレベータ、都市ガス | ||
| 備考 | 口振手数料110円(月額) 1年未満解約違約金有 | ||
| 周辺施設 |
コンビニ距離66m |
||
| 物件番号 | 995663 | 取引態様 | 仲介 |
| 情報更新日 | 2026年02月25日 | ||
| 物件番号 | |||
敷金・礼金・家賃・入居時期時期など、何でもご相談ください!
JR山手線・巣鴨駅から徒歩1分!
ハウス・トゥ・ハウス巣鴨店で元気にお待ちしております!







