ルフォンプログレ赤羽マークス404 4階 | 1DK | 13.2万円
南北線赤羽岩淵駅徒歩2分の駅チカ物件!ネット利用料無料!
| 賃料 | 13.2万円 | 管理費・共益費 | 1.5万円 |
|---|---|---|---|
| 敷金/礼金 | 1ヶ月 / なし | 専有面積 | 26.44m² |
| 間取り | 1DK | 階建 | 4階/12階建 |
ルフォンプログレ赤羽マークス404の詳細
| 物件種別 | マンション | ||
|---|---|---|---|
| 賃料 | 13.2万円 | 管理費・共益費 | 1.5万円 |
| 敷金/保証金 | 1ヶ月 / - | 礼金/償却・敷引 | なし / - |
| 更新料 | 1ヶ月 | ||
| その他費用 | 室内清掃費用:49,500円 | ||
| 所在地 | 東京都北区赤羽2丁目68 | ||
| 交通 |
JR京浜東北・根岸線「赤羽駅」 徒歩8分 |
||
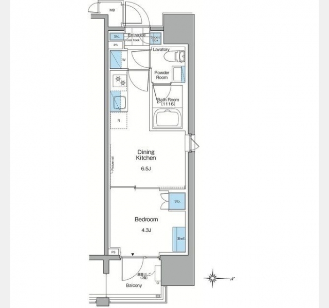
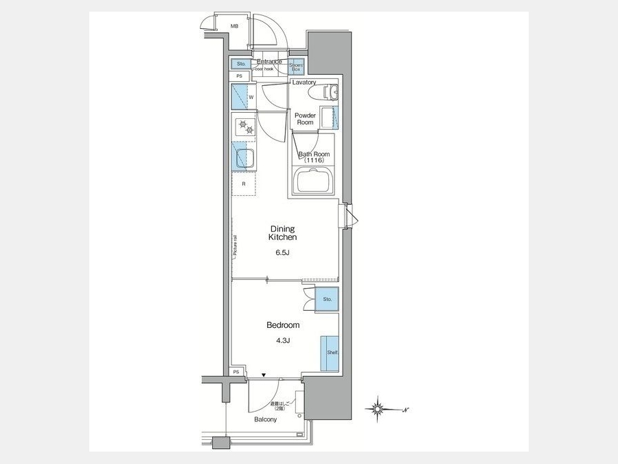
| 間取り | 1DK | 間取り内訳 |
DK 6.5 畳 洋室 4.3 畳 |
| 専有面積 | 26.44m² | バルコニー面積 | |
| 築年月(築年数) | 2026年03月(建築中) | 方位 | 東 |
| 建物構造 | RC(鉄筋コンクリート) | 所在階/階建 | 4階/12階建 |
| 総戸数 | 40戸 | 駐車場 |
空有-台/-38,500円 3LDK優先 |
| 保険料 | 要 16,550円 2年 | 契約期間 | 2年間 |
| 現況(予定年月) | 2026年03月下旬 | ||
| 管理 | |||
| 設備・条件 | 2階以上、角部屋、システムキッチン、バス・トイレ別、温水洗浄便座、浴室乾燥機、室内洗濯機置き場、エアコン、バルコニー、礼金なし、ペット相談、インターネット対応、BSアンテナ、CSアンテナ、CATV、オートロック、TVドアホン、防犯カメラ、宅配ボックス、駐輪場、エレベータ | ||
| 備考 | 短期解約違約金あり/ペット飼育時敷金1ヶ月追加/LUUPあり/駐車場は3LDK優先・EV充電器あり/掲載情報と現況が異なる場合は、現況を優先とします。 | ||
| 周辺施設 |
コンビニ距離150m、スーパー距離28m、病院距離316m |
||
| 物件番号 | 986429 | 取引態様 | 仲介 |
| 情報更新日 | 2026年02月04日 | ||
| 物件番号 | |||
敷金・礼金・家賃・入居時期時期など、何でもご相談ください!
都心へのアクセス抜群な赤羽エリアでお部屋探し♪
ハウス・トゥ・ハウス赤羽店で元気にお待ちしております!







