グローリオシェルト池袋Ⅴ502 5階 | 2K | 17.3万円
共用部には宅配ボックスが備え付けられているため、忙しくて在宅時間が少なくても荷物を受け取れます。
| 賃料 | 17.3万円 | 管理費・共益費 | 1.5万円 |
|---|---|---|---|
| 敷金/礼金 | なし / なし | 専有面積 | 30.40m² |
| 間取り | 2K | 階建 | 5階/5階建 |
グローリオシェルト池袋Ⅴ502の詳細
| 物件種別 | マンション | ||
|---|---|---|---|
| 賃料 | 17.3万円 | 管理費・共益費 | 1.5万円 |
| 敷金/保証金 | なし / - | 礼金/償却・敷引 | なし / - |
| 更新料 | - | ||
| その他費用 |
24時間安心サポート料(税込):22,000円 室内抗菌処理代(税込):17,600円 事務手数料(税込):11,000円 鍵交換費用:22,000円 |
||
| 所在地 | 東京都豊島区池袋4丁目6-7 | ||
| 交通 | |||
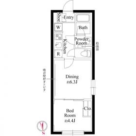
| 間取り | 2K | 間取り内訳 |
洋室 6.3 畳 洋室 4.4 畳 |
| 専有面積 | 30.40m² | バルコニー面積 | |
| 築年月(築年数) | 2026年01月(新築) | 方位 | 北 |
| 建物構造 | RC(鉄筋コンクリート) | 所在階/階建 | 5階/5階建 |
| 総戸数 | - | 駐車場 | |
| 保険料 | 要 | 契約期間 | 2年間 |
| 現況(予定年月) | 2026年02月下旬 | ||
| 管理 | |||
| 設備・条件 | 2階以上、最上階、角部屋、システムキッチン、バス・トイレ別、温水洗浄便座、浴室乾燥機、室内洗濯機置き場、フローリング、エアコン、礼金なし、敷金なし、2人入居相談、インターネット対応、BSアンテナ、CSアンテナ、オートロック、TVドアホン、防犯カメラ、宅配ボックス、バイク置き場、駐輪場、エレベータ、都市ガス | ||
| 備考 | バイク置場5500円/月額※空き要確認。駐輪場初回登録料5500円※先着。エポス以外の保証会社利用時、敷金1ヶ月追加。賃料口座引落。短期解約違約金:1年未満は総賃料の1ヶ月分。クリーニング費用(49500円)・エアコンクリーニング費用(19800円/1台あたり)は借主負担(退去時)。 | ||
| 周辺施設 |
コンビニ距離120m、スーパー距離280m、病院距離642m |
||
| 物件番号 | 986182 | 取引態様 | 仲介 |
| 情報更新日 | 2026年02月04日 | ||
| 物件番号 | |||
敷金・礼金・家賃・入居時期時期など、何でもご相談ください!
池袋まで埼京線で5分というアクセス利便性が魅力★
ハウス・トゥ・ハウス板橋店で元気にお待ちしております!







