ピュアパレス100 1階 | 4SLDK | 17.5万円
| 賃料 | 17.5万円 | 管理費・共益費 | 0.5万円 |
|---|---|---|---|
| 敷金/礼金 | なし / なし | 専有面積 | 123.80m² |
| 間取り | 4SLDK | 階建 | 1階/2階建 |
ピュアパレス100の詳細
| 物件種別 | アパート | ||
|---|---|---|---|
| 賃料 | 17.5万円 | 管理費・共益費 | 0.5万円 |
| 敷金/保証金 | なし / - | 礼金/償却・敷引 | なし / - |
| 更新料 | 1ヶ月 | ||
| その他費用 |
文書作成代:22,000円 24時間サポート:23,100円 鍵交換費用:33,000円 室内清掃費用:204,270円 |
||
| 所在地 | 埼玉県川口市上青木3丁目4-14 | ||
| 交通 |
JR京浜東北・根岸線「西川口駅」 徒歩31分 |
||
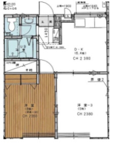
| 間取り | 4SLDK | 間取り内訳 | |
| 専有面積 | 123.80m² | バルコニー面積 | |
| 築年月(築年数) | 1993年03月(築33年) | 方位 | - |
| 建物構造 | 木造 | 所在階/階建 | 1階/2階建 |
| 総戸数 | - | 駐車場 | |
| 保険料 | 要 23,100円 | 契約期間 | 2年間 |
| 現況(予定年月) | 即時 | ||
| 管理 | |||
| 設備・条件 | 1階、角部屋、バス・トイレ別、温水洗浄便座、浴室乾燥機、室内洗濯機置き場、エアコン、即入居可、礼金なし、敷金なし、保証人不要、2人入居相談、BSアンテナ、CSアンテナ、CATV、オートロック、TVドアホン、プロパンガス | ||
| 備考 | |||
| 周辺施設 |
コンビニ距離321m、スーパー距離424m、病院距離617m |
||
| 物件番号 | 1001938 | 取引態様 | 仲介 |
| 情報更新日 | 2026年03月11日 | ||
| 物件番号 | |||
敷金・礼金・家賃・入居時期時期など、何でもご相談ください!
2024年12月新規オープン!南浦和駅東口から徒歩1分♪
ハウス・トゥ・ハウス南浦和店で元気にお待ちしております!







