Kolet南与野#04- 1階 | 3LDK | 19.3万円
| 賃料 | 19.3万円 | 管理費・共益費 | なし |
|---|---|---|---|
| 敷金/礼金 | 1ヶ月 / なし | 専有面積 | 74.98m² |
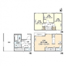
| 間取り | 3LDK | 階建 | 1階/3階建 |
Kolet南与野#04-の詳細
| 物件種別 | 一戸建 | ||
|---|---|---|---|
| 賃料 | 19.3万円 | 管理費・共益費 | なし |
| 敷金/保証金 | 1ヶ月 / - | 礼金/償却・敷引 | なし / - |
| 更新料 | 1ヶ月 | ||
| その他費用 |
エアコンクリーニング費用:44,000円 室内清掃費用:98,973円 |
||
| 所在地 | 埼玉県さいたま市中央区鈴谷1丁目27-14 | ||
| 交通 | |||
| 間取り | 3LDK | 間取り内訳 | |
| 専有面積 | 74.98m² | バルコニー面積 | |
| 築年月(築年数) | 2023年01月(築3年) | 方位 | 北 |
| 建物構造 | 木造 | 所在階/階建 | 1階/3階建 |
| 総戸数 | - | 駐車場 | 空有1台/- |
| 保険料 | 要 16,550円 2年 | 契約期間 | 2年間 |
| 現況(予定年月) | 2026年04月中旬 | ||
| 管理 | |||
| 設備・条件 | システムキッチン、バス・トイレ別、温水洗浄便座、追い焚き、室内洗濯機置き場、フローリング、エアコン、バルコニー、礼金なし、ペット相談、楽器相談、TVドアホン、宅配ボックス | ||
| 備考 | |||
| 周辺施設 |
コンビニ距離956m、スーパー距離423m |
||
| 物件番号 | 984703 | 取引態様 | 仲介 |
| 情報更新日 | 2026年02月04日 | ||
| 物件番号 | |||
敷金・礼金・家賃・入居時期時期など、何でもご相談ください!
2024年12月新規オープン!南浦和駅東口から徒歩1分♪
ハウス・トゥ・ハウス南浦和店で元気にお待ちしております!







