リアルワン要町304 3階 | 1R | 15.1万円
近くにはセブンイレブン 豊島高松3丁目店(徒歩7分)がありちょっとした買い物に便利です。TVインター
| 賃料 | 15.1万円 | 管理費・共益費 | 2万円 |
|---|---|---|---|
| 敷金/礼金 | なし / なし | 専有面積 | 32.76m² |
| 間取り | 1R | 階建 | 3階/4階建 |
リアルワン要町304の詳細
| 物件種別 | マンション | ||
|---|---|---|---|
| 賃料 | 15.1万円 | 管理費・共益費 | 2万円 |
| 敷金/保証金 | なし / 1ヶ月 | 礼金/償却・敷引 | なし / - |
| 更新料 | 1ヶ月 | ||
| その他費用 |
契約事務手数料:11,000円 室内清掃費用:60,500円 |
||
| 所在地 | 東京都豊島区千早2丁目21-10 | ||
| 交通 | |||
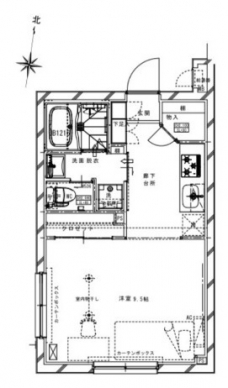
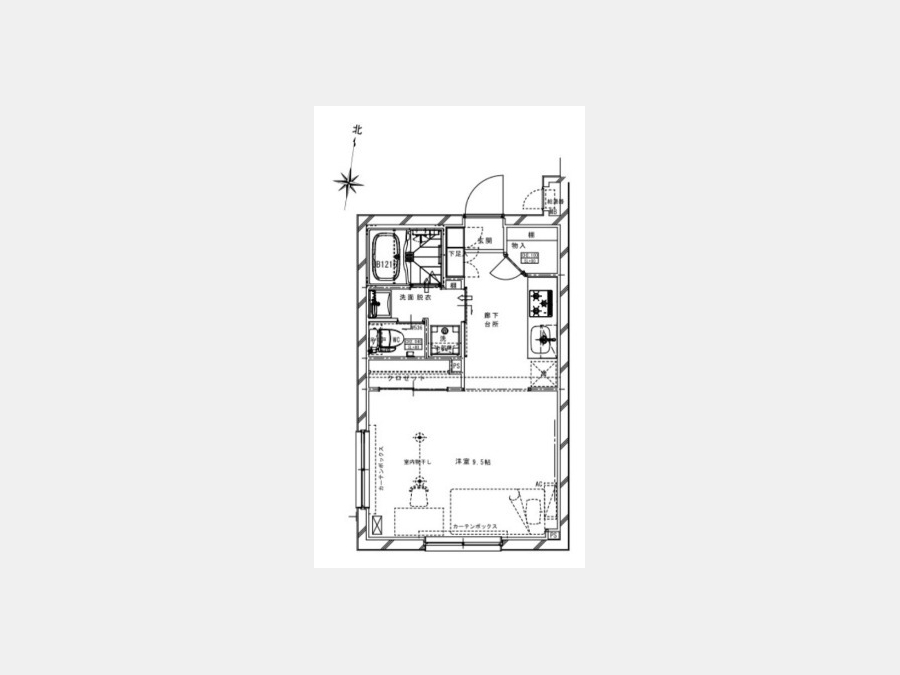
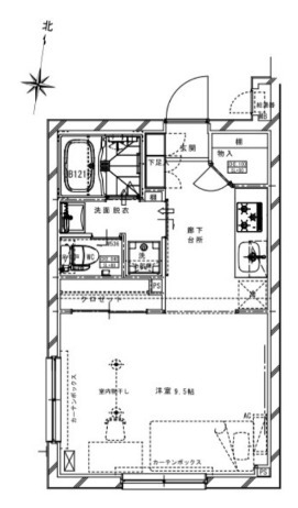
| 間取り | 1R | 間取り内訳 |
洋室 9.5 畳 |
| 専有面積 | 32.76m² | バルコニー面積 | |
| 築年月(築年数) | 2026年02月(建築中) | 方位 | 南 |
| 建物構造 | RC(鉄筋コンクリート) | 所在階/階建 | 3階/4階建 |
| 総戸数 | 14戸 | 駐車場 | |
| 保険料 | 要 20,000円 2年 | 契約期間 | 2年間 |
| 現況(予定年月) | 2026年03月中旬 | ||
| 管理 | |||
| 設備・条件 | 2階以上、角部屋、南向き部屋、システムキッチン、バス・トイレ別、温水洗浄便座、浴室乾燥機、室内洗濯機置き場、フローリング、エアコン、ペット相談、2人入居相談、インターネット対応、オートロック、TVドアホン、防犯カメラ、宅配ボックス、バイク置き場、駐輪場、都市ガス | ||
| 備考 | 24時間サポート1650円(月額) 解約予告2ヶ月前。契約時保証金償却(原状回復費用は含まれません)。退去時クリーニング費用60500円・エアコン分解洗浄費16500円。短期解約違約金:1年未満は総賃料の2ヶ月分、1年以上2年未満は総賃料の1ヶ月分。更新事務手数料0.55ヶ月。ペット飼育:敷金1ヶ月増(償却)、敷金超過分は別途請求、賃料5000円増。バイク置場:月額4400円、駐輪場:月額1650円から2200円。先行契約。エレベーター無。W | ||
| 周辺施設 |
コンビニ距離305m、スーパー距離388m、病院距離928m |
||
| 物件番号 | 972327 | 取引態様 | 仲介 |
| 情報更新日 | 2026年01月27日 | ||
| 物件番号 | |||
敷金・礼金・家賃・入居時期時期など、何でもご相談ください!
池袋まで埼京線で5分というアクセス利便性が魅力★
ハウス・トゥ・ハウス板橋店で元気にお待ちしております!







