レーベンリヴァーレ双葉町407 4階 | 1SLDK | 14.5万円
板橋区エリアでの住まいなら、住み心地も快適な「レーベンリヴァーレ双葉町」はいかがでしょうか。「レーベ
| 賃料 | 14.5万円 | 管理費・共益費 | 1万円 |
|---|---|---|---|
| 敷金/礼金 | 2ヶ月 / 1ヶ月 | 専有面積 | 58.55m² |
| 間取り | 1SLDK | 階建 | 4階/5階建 |
レーベンリヴァーレ双葉町407の詳細
| 物件種別 | マンション | ||
|---|---|---|---|
| 賃料 | 14.5万円 | 管理費・共益費 | 1万円 |
| 敷金/保証金 | 2ヶ月 / - | 礼金/償却・敷引 | 1ヶ月 / - |
| 更新料 | - | ||
| その他費用 | 除菌施工料:19,800円 | ||
| 所在地 | 東京都板橋区双葉町25-16 | ||
| 交通 | |||
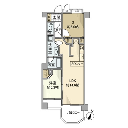
| 間取り | 1SLDK | 間取り内訳 |
LDK 14.6 畳 洋室 5.3 畳 S 6 畳 |
| 専有面積 | 58.55m² | バルコニー面積 | |
| 築年月(築年数) | 2022年05月(築3年) | 方位 | 南東 |
| 建物構造 | RC(鉄筋コンクリート) | 所在階/階建 | 4階/5階建 |
| 総戸数 | - | 駐車場 | |
| 保険料 | 要 25,500円 2年 | 契約期間 | 6年間 |
| 現況(予定年月) | 2026年02月下旬 | ||
| 管理 | |||
| 設備・条件 | 2階以上、システムキッチン、カウンターキッチン、バス・トイレ別、温水洗浄便座、浴室乾燥機、追い焚き、室内洗濯機置き場、フローリング、エアコン、ウォークインクローゼット、バルコニー、分譲賃貸、CATV、オートロック、TVドアホン、宅配ボックス、エレベータ、都市ガス | ||
| 備考 | リロサポ1500円(月額) 6ヶ月未満で解約した場合、賃料の0.5ヶ月分を申受けます。共用部には宅配ボックスが付いているため、荷物の受け取りのために早く帰宅する必要がありません。こちらはエレベーター付きの物件です。生活する上でもっとも大切な住環境。板橋区エリアや都営三田線板橋本町付近であなたのライフスタイルに合ったお部屋をご紹介致します。 | ||
| 周辺施設 |
コンビニ距離298m、スーパー距離538m、病院距離558m |
||
| 物件番号 | 979434 | 取引態様 | 仲介 |
| 情報更新日 | 2026年03月10日 | ||
| 物件番号 | |||
敷金・礼金・家賃・入居時期時期など、何でもご相談ください!
3路線3駅利用可の板橋エリアでお部屋探し♪
ハウス・トゥ・ハウス板橋東口店で元気にお待ちしております!







