Brillia Tower 池袋1311 13階 | 1R | 16万円
複数路線利用可能で通勤通学に便利♪
| 賃料 | 16万円 | 管理費・共益費 | 1万円 |
|---|---|---|---|
| 敷金/礼金 | 1ヶ月 / 1ヶ月 | 専有面積 | 31.25m² |
| 間取り | 1R | 階建 | 13階/49階建(B3階) |
Brillia Tower 池袋1311の詳細
| 物件種別 | マンション | ||
|---|---|---|---|
| 賃料 | 16万円 | 管理費・共益費 | 1万円 |
| 敷金/保証金 | 1ヶ月 / - | 礼金/償却・敷引 | 1ヶ月 / - |
| 更新料 | 1ヶ月 | ||
| その他費用 | - | ||
| 所在地 | 東京都豊島区南池袋2丁目45-2 | ||
| 交通 | |||
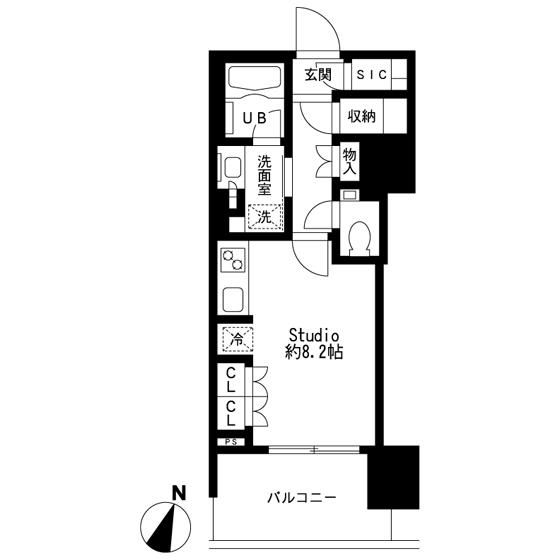
| 間取り | 1R | 間取り内訳 |
洋室 8.2 畳 |
| 専有面積 | 31.25m² | バルコニー面積 | 7.48m² |
| 築年月(築年数) | 2015年03月(築10年) | 方位 | 南 |
| 建物構造 | SRC(鉄骨鉄筋コンクリート) | 所在階/階建 | 13階/49階建(B3階) |
| 総戸数 | 432戸 | 駐車場 | |
| 保険料 | 要 | 契約期間 | 2年間 |
| 現況(予定年月) | 即時 | ||
| 管理 | |||
| 設備・条件 | 2階以上、南向き部屋、システムキッチン、バス・トイレ別、温水洗浄便座、浴室乾燥機、室内洗濯機置き場、エアコン、床暖房、シューズインクローゼット、バルコニー、即入居可、保証人不要、BSアンテナ、CSアンテナ、CATV、オートロック、TVドアホン、宅配ボックス、駐輪場、都市ガス、タワーマンション | ||
| 備考 | ◆更新手数料22,000円 ◆2年未満解約償却50% | ||
| 周辺施設 |
コンビニ距離155m、スーパー距離401m、病院距離1,338m |
||
| 物件番号 | 978417 | 取引態様 | 仲介 |
| 情報更新日 | 2026年01月20日 | ||
| 物件番号 | |||
敷金・礼金・家賃・入居時期時期など、何でもご相談ください!
JR山手線・巣鴨駅から徒歩1分!
ハウス・トゥ・ハウス巣鴨店で元気にお待ちしております!







