ハイリバー池袋105 1階 | 1R | 7.2万円
ドアを開けたり直接会話しなくてもモニター越しに来訪者を確認できるモニター付きインターホンを設置してお
| 賃料 | 7.2万円 | 管理費・共益費 | 0.4万円 |
|---|---|---|---|
| 敷金/礼金 | なし / 1ヶ月 | 専有面積 | 11.29m² |
| 間取り | 1R | 階建 | 1階/2階建 |
ハイリバー池袋105の詳細
| 物件種別 | アパート | ||
|---|---|---|---|
| 賃料 | 7.2万円 | 管理費・共益費 | 0.4万円 |
| 敷金/保証金 | なし / - | 礼金/償却・敷引 | 1ヶ月 / - |
| 更新料 | 1ヶ月 | ||
| その他費用 |
とくとくプラス:18,700円 室内消毒料:19,800円 室内清掃費用:44,000円 |
||
| 所在地 | 東京都豊島区西池袋2丁目23-10 | ||
| 交通 | |||
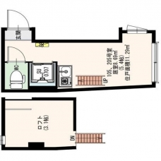
| 間取り | 1R | 間取り内訳 |
洋室 5.4 畳 1 階 1 室 ロフト3.1帖 |
| 専有面積 | 11.29m² | バルコニー面積 | |
| 築年月(築年数) | 2016年04月(築9年) | 方位 | 東 |
| 建物構造 | 木造 | 所在階/階建 | 1階/2階建 |
| 総戸数 | 8戸 | 駐車場 | 無 |
| 保険料 | 要 20,000円 2年 | 契約期間 | 2年間 |
| 現況(予定年月) | 2026年04月中旬 | ||
| 管理 | |||
| 設備・条件 | 1階、角部屋、温水洗浄便座、室内洗濯機置き場、フローリング、ロフト付き、エアコン、敷金なし、インターネット対応、BSアンテナ、TVドアホン、プロパンガス、デザイナーズ | ||
| 備考 | シノサポプラス1650円(月額) 退去時にルームクリーニング費用44000円・エアコンクリーニング費13200円/台がかかります。火災保険:20000円/2年(保証会社によって950円/月)。お車でご案内します。お気軽にお問い合わせ下さい。 | ||
| 周辺施設 |
コンビニ距離284m、スーパー距離577m、病院距離324m |
||
| 物件番号 | 998592 | 取引態様 | 仲介 |
| 情報更新日 | 2026年03月04日 | ||
| 物件番号 | |||
敷金・礼金・家賃・入居時期時期など、何でもご相談ください!
JR山手線・巣鴨駅から徒歩1分!
ハウス・トゥ・ハウス巣鴨店で元気にお待ちしております!







