ハイズ戸田マキシヴ102 1階 | 1K | 8.1万円
| 賃料 | 8.1万円 | 管理費・共益費 | 1万円 |
|---|---|---|---|
| 敷金/礼金 | なし / なし | 専有面積 | 22.52m² |
| 間取り | 1K | 階建 | 1階/6階建 |
ハイズ戸田マキシヴ102の詳細
| 物件種別 | マンション | ||
|---|---|---|---|
| 賃料 | 8.1万円 | 管理費・共益費 | 1万円 |
| 敷金/保証金 | なし / - | 礼金/償却・敷引 | なし / - |
| 更新料 | 1.5ヶ月 | ||
| その他費用 | 室内抗菌代:16,500円 | ||
| 所在地 | 埼玉県戸田市大字新曽1768 | ||
| 交通 | |||
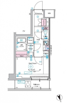
| 間取り | 1K | 間取り内訳 |
K 洋室 5.4 畳 |
| 専有面積 | 22.52m² | バルコニー面積 | |
| 築年月(築年数) | 2025年11月(新築) | 方位 | 北東 |
| 建物構造 | RC(鉄筋コンクリート) | 所在階/階建 | 1階/6階建 |
| 総戸数 | - | 駐車場 | 無 |
| 保険料 | 要 | 契約期間 | 2年間 |
| 現況(予定年月) | 即時 | ||
| 管理 | |||
| 設備・条件 | 1階、システムキッチン、バス・トイレ別、温水洗浄便座、浴室乾燥機、室内洗濯機置き場、フローリング、エアコン、バルコニー、分譲賃貸、即入居可、礼金なし、敷金なし、保証人不要、ペット相談、BSアンテナ、CSアンテナ、光ファイバー、オートロック、TVドアホン、防犯カメラ、宅配ボックス、駐輪場、エレベータ、都市ガス | ||
| 備考 | 24時間サポート2200円(月額) | ||
| 周辺施設 |
コンビニ距離266m、スーパー距離353m、病院距離1,492m |
||
| 物件番号 | 976714 | 取引態様 | 仲介 |
| 情報更新日 | 2026年01月20日 | ||
| 物件番号 | |||
敷金・礼金・家賃・入居時期時期など、何でもご相談ください!
埼玉県への玄関口・川口でお部屋探し♪
ハウス・トゥ・ハウス川口店で元気にお待ちしております!







