BPRレジデンス練馬富士見台207 2階 | 1LDK | 12.4万円
インターネット使用料無料の物件です。
| 賃料 | 12.4万円 | 管理費・共益費 | 1万円 |
|---|---|---|---|
| 敷金/礼金 | 1ヶ月 / 1ヶ月 | 専有面積 | 31.43m² |
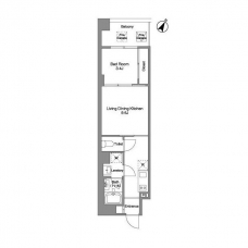
| 間取り | 1LDK | 階建 | 2階/4階建(B1階) |
BPRレジデンス練馬富士見台207の詳細
| 物件種別 | マンション | ||
|---|---|---|---|
| 賃料 | 12.4万円 | 管理費・共益費 | 1万円 |
| 敷金/保証金 | 1ヶ月 / - | 礼金/償却・敷引 | 1ヶ月 / - |
| 更新料 | 1ヶ月 | ||
| その他費用 | 室内清掃費用:66,000円 | ||
| 所在地 | 東京都練馬区貫井3丁目37-5 | ||
| 交通 | |||
| 間取り | 1LDK | 間取り内訳 | |
| 専有面積 | 31.43m² | バルコニー面積 | |
| 築年月(築年数) | 2025年11月(築1年以内) | 方位 | 北西 |
| 建物構造 | RC(鉄筋コンクリート) | 所在階/階建 | 2階/4階建(B1階) |
| 総戸数 | - | 駐車場 | 無 |
| 保険料 | 要 16,550円 2年 | 契約期間 | 2年間 |
| 現況(予定年月) | 2026年01月下旬 | ||
| 管理 | |||
| 設備・条件 | 2階以上、システムキッチン、バス・トイレ別、温水洗浄便座、浴室乾燥機、追い焚き、室内洗濯機置き場、エアコン、バルコニー、保証人不要、ペット相談、2人入居相談、インターネット対応、オートロック、TVドアホン、防犯カメラ、宅配ボックス、エレベータ | ||
| 備考 | ペット飼育相談可能飼育時敷金プラス1か月(小型犬1匹又は猫2匹迄) | ||
| 周辺施設 |
コンビニ距離393m、スーパー距離218m、病院距離743m |
||
| 物件番号 | 975821 | 取引態様 | 仲介 |
| 情報更新日 | 2026年01月13日 | ||
| 物件番号 | |||
敷金・礼金・家賃・入居時期時期など、何でもご相談ください!
都営三田線でのお部屋探しなら当店にお任せください!
ハウス・トゥ・ハウス志村坂上店で元気にお待ちしております!







