ドミール五番町2-033 3階 | 1R | 28万円
室内設備は浴室乾燥機・洗面所独立など大変充実しております。知らない人が玄関前まで来ることが減るので防
| 賃料 | 28万円 | 管理費・共益費 | 2万円 |
|---|---|---|---|
| 敷金/礼金 | 1ヶ月 / 1ヶ月 | 専有面積 | 68.73m² |
| 間取り | 1R | 階建 | 3階/13階建 |
ドミール五番町2-033の詳細
| 物件種別 | マンション | ||
|---|---|---|---|
| 賃料 | 28万円 | 管理費・共益費 | 2万円 |
| 敷金/保証金 | 1ヶ月 / - | 礼金/償却・敷引 | 1ヶ月 / - |
| 更新料 | - | ||
| その他費用 | - | ||
| 所在地 | 東京都千代田区五番町12-7 | ||
| 交通 | |||
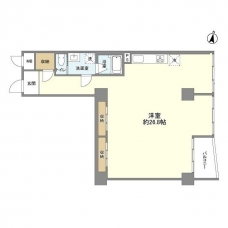
| 間取り | 1R | 間取り内訳 |
洋室 26.8 畳 |
| 専有面積 | 68.73m² | バルコニー面積 | |
| 築年月(築年数) | 1971年10月(築54年) | 方位 | 東 |
| 建物構造 | SRC(鉄骨鉄筋コンクリート) | 所在階/階建 | 3階/13階建 |
| 総戸数 | 123戸 | 駐車場 | |
| 保険料 | 要 16,550円 2年 | 契約期間 | 2年間 |
| 現況(予定年月) | 即時 | ||
| 管理 | |||
| 設備・条件 | 2階以上、システムキッチン、バス・トイレ別、温水洗浄便座、浴室乾燥機、室内洗濯機置き場、エアコン、バルコニー、分譲賃貸、即入居可、インターネット対応、オートロック、エレベータ | ||
| 備考 | コールセンター利用料1100円(月額) ■定期借家契約 ■TV有料放送・ネット利用および工事費有料の場合あり | ||
| 周辺施設 |
コンビニ距離791m、スーパー距離1,807m、病院距離1,345m |
||
| 物件番号 | 971852 | 取引態様 | 仲介 |
| 情報更新日 | 2026年01月12日 | ||
| 物件番号 | |||
敷金・礼金・家賃・入居時期時期など、何でもご相談ください!
山手線・東京メトロ南北線沿線でのお部屋探しなら
当店にお任せください!
ハウス・トゥ・ハウス駒込店で元気にお待ちしております!







