ECREDE赤羽SOUTH205 2階 | 1DK | 11.3万円
2月分日割り賃料フリーレントあり
| 賃料 | 11.3万円 | 管理費・共益費 | 1万円 |
|---|---|---|---|
| 敷金/礼金 | なし / 1ヶ月 | 専有面積 | 25.92m² |
| 間取り | 1DK | 階建 | 2階/5階建 |
ECREDE赤羽SOUTH205の詳細
| 物件種別 | マンション | ||
|---|---|---|---|
| 賃料 | 11.3万円 | 管理費・共益費 | 1万円 |
| 敷金/保証金 | なし / - | 礼金/償却・敷引 | 1ヶ月 / - |
| 更新料 | 1ヶ月 | ||
| その他費用 | - | ||
| 所在地 | 東京都北区神谷2丁目17-8 | ||
| 交通 |
JR京浜東北・根岸線「東十条駅」 徒歩10分 |
||
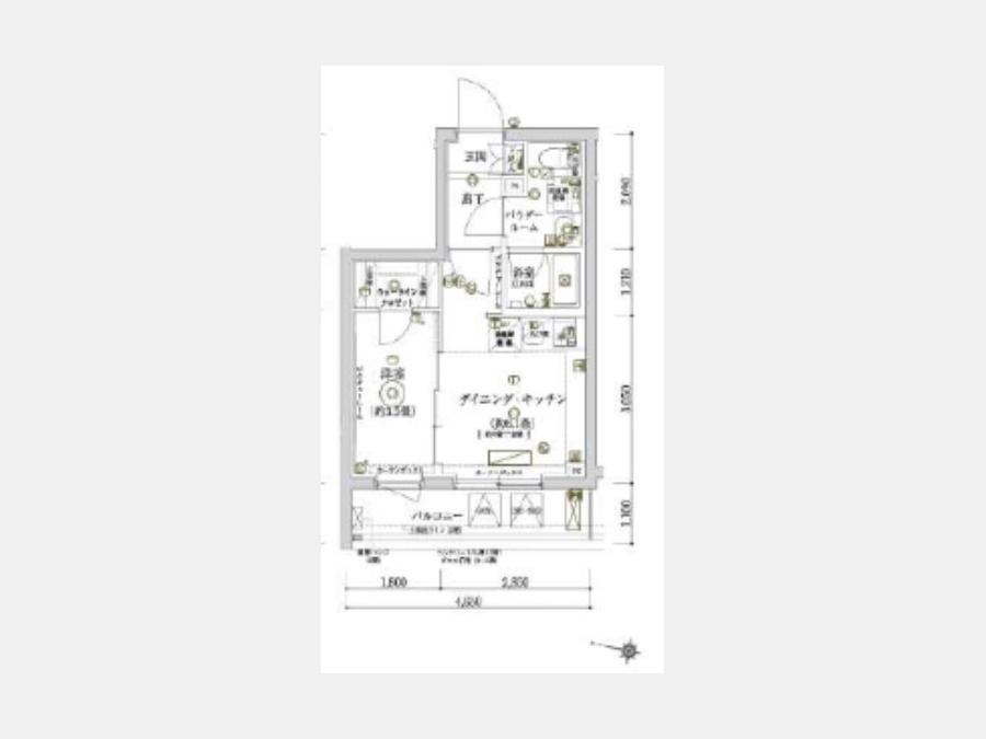
| 間取り | 1DK | 間取り内訳 |
DK 6.1 畳 洋室 3.5 畳 |
| 専有面積 | 25.92m² | バルコニー面積 | |
| 築年月(築年数) | 2026年01月(新築) | 方位 | 西 |
| 建物構造 | RC(鉄筋コンクリート) | 所在階/階建 | 2階/5階建 |
| 総戸数 | - | 駐車場 | |
| 保険料 | 要 | 契約期間 | 2年間 |
| 現況(予定年月) | 2026年02月 | ||
| 管理 | |||
| 設備・条件 | 2階以上、システムキッチン、バス・トイレ別、温水洗浄便座、浴室乾燥機、室内洗濯機置き場、エアコン、ウォークインクローゼット、バルコニー、分譲賃貸、敷金なし、インターネット対応、オートロック、TVドアホン、防犯カメラ、宅配ボックス、エレベータ | ||
| 備考 | 保険料1000円(月額) 24時間サポート1100円(月額) 解約予告2ヶ月前 半年未満の解約は総賃料3ヶ月分、1年未満の解約は総賃料2ヶ月分の短期解約違約金あり | ||
| 周辺施設 |
コンビニ距離271m、スーパー距離238m、病院距離762m |
||
| 物件番号 | 979475 | 取引態様 | 仲介 |
| 情報更新日 | 2026年01月21日 | ||
| 物件番号 | |||
敷金・礼金・家賃・入居時期時期など、何でもご相談ください!
歴史と情緒が薫る街・西日暮里でお部屋探し♪
ハウス・トゥ・ハウス西日暮里店で元気にお待ちしております!







