EL VIENT RIDE KAMINAKAZATO104 1階 | 1K | 8万円
「EL VIENT RIDE KAMINAKAZATO」のここがイチオシ。徒歩13分の場所に北区立
| 賃料 | 8万円 | 管理費・共益費 | 1万円 |
|---|---|---|---|
| 敷金/礼金 | なし / 1ヶ月 | 専有面積 | 26.43m² |
| 間取り | 1K | 階建 | 1階/4階建 |
EL VIENT RIDE KAMINAKAZATO104の詳細
| 物件種別 | マンション | ||
|---|---|---|---|
| 賃料 | 8万円 | 管理費・共益費 | 1万円 |
| 敷金/保証金 | なし / - | 礼金/償却・敷引 | 1ヶ月 / - |
| 更新料 | 1ヶ月 | ||
| その他費用 |
契約事務手数料 :11,000円 鍵交換費用:38,500円 |
||
| 所在地 | 東京都北区上中里1丁目12-2 | ||
| 交通 |
JR京浜東北・根岸線「上中里駅」 徒歩5分 |
||
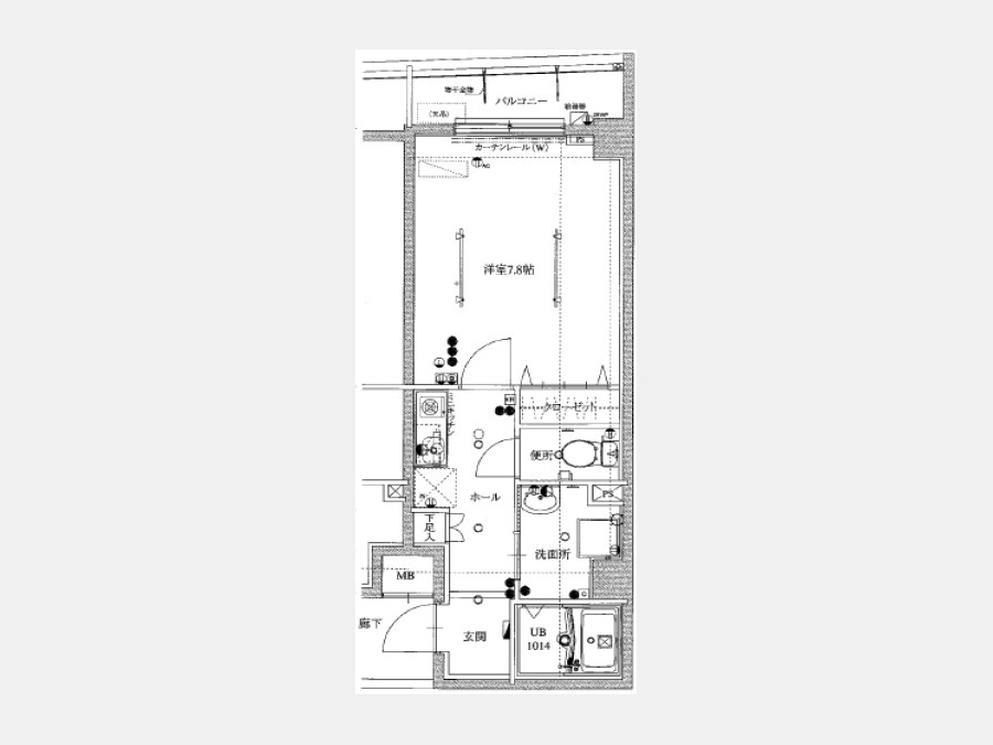
| 間取り | 1K | 間取り内訳 |
洋室 7.8 畳 |
| 専有面積 | 26.43m² | バルコニー面積 | |
| 築年月(築年数) | 2007年03月(築18年) | 方位 | - |
| 建物構造 | RC(鉄筋コンクリート) | 所在階/階建 | 1階/4階建 |
| 総戸数 | - | 駐車場 |
※空要確認 |
| 保険料 | 要 18,000円 2年 | 契約期間 | 2年間 |
| 現況(予定年月) | 2026年03月中旬 | ||
| 管理 | |||
| 設備・条件 | 1階、バス・トイレ別、浴室乾燥機、室内洗濯機置き場、エアコン、バルコニー、敷金なし、ペット相談、光ファイバー、オートロック、TVドアホン、宅配ボックス、駐輪場、都市ガス | ||
| 備考 | 24時間サポート1100円(月額) 1年未満の解約時、総賃料1ヶ月分の違約金あり。更新事務手数料:11000円。退去時クリーニング費用負担あり。 | ||
| 周辺施設 |
北区立滝野川第五小学校996m、コンビニ距離359m、スーパー距離289m、病院距離1,023m |
||
| 物件番号 | 964485 | 取引態様 | 仲介 |
| 情報更新日 | 2026年01月30日 | ||
| 物件番号 | |||
敷金・礼金・家賃・入居時期時期など、何でもご相談ください!
JR山手線・巣鴨駅から徒歩1分!
ハウス・トゥ・ハウス巣鴨店で元気にお待ちしております!







