ウィーブ北町306 3階 | 3LDK | 9.2万円
| 賃料 | 9.2万円 | 管理費・共益費 | 0.8万円 |
|---|---|---|---|
| 敷金/礼金 | 1ヶ月 / なし | 専有面積 | 65.15m² |
| 間取り | 3LDK | 階建 | 3階/5階建 |
ウィーブ北町306の詳細
| 物件種別 | マンション | ||
|---|---|---|---|
| 賃料 | 9.2万円 | 管理費・共益費 | 0.8万円 |
| 敷金/保証金 | 1ヶ月 / - | 礼金/償却・敷引 | なし / - |
| 更新料 | - | ||
| その他費用 | - | ||
| 所在地 | 埼玉県蕨市北町4丁目3-11 | ||
| 交通 |
JR京浜東北・根岸線「蕨駅」 徒歩13分 |
||
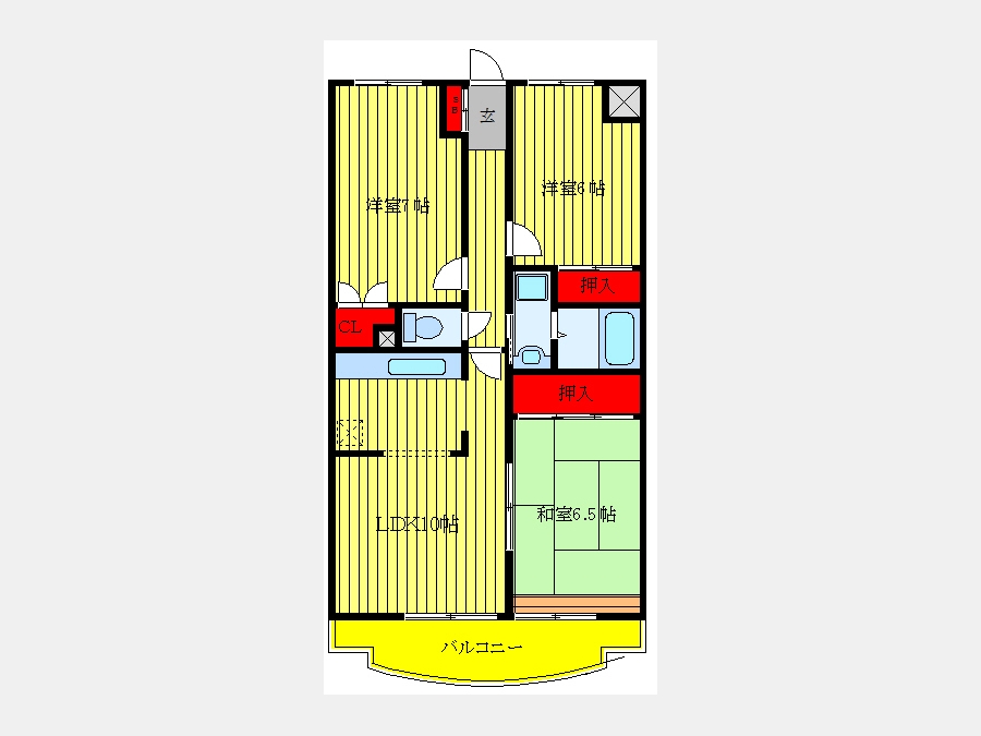
| 間取り | 3LDK | 間取り内訳 |
LDK 10 畳 洋室 7 畳 洋室 6 畳 和室 6.5 畳 |
| 専有面積 | 65.15m² | バルコニー面積 | |
| 築年月(築年数) | 1995年03月(築30年) | 方位 | 西 |
| 建物構造 | RC(鉄筋コンクリート) | 所在階/階建 | 3階/5階建 |
| 総戸数 | 60戸 | 駐車場 | 空有1台/-14,300円 |
| 保険料 | 要 22,000円 2年 | 契約期間 | 2年間 |
| 現況(予定年月) | 2026年04月下旬 | ||
| 管理 | |||
| 設備・条件 | 2階以上、バス・トイレ別、追い焚き、室内洗濯機置き場、バルコニー、礼金なし、2人入居相談、インターネット対応、BSアンテナ、CATV、TVドアホン、防犯カメラ、駐輪場、エレベータ、都市ガス | ||
| 備考 | 町会費250円(月額) | ||
| 周辺施設 |
コンビニ距離299m、スーパー距離479m、病院距離531m |
||
| 物件番号 | 990189 | 取引態様 | 仲介 |
| 情報更新日 | 2026年02月14日 | ||
| 物件番号 | |||
敷金・礼金・家賃・入居時期時期など、何でもご相談ください!
2024年12月新規オープン!南浦和駅東口から徒歩1分♪
ハウス・トゥ・ハウス南浦和店で元気にお待ちしております!







