Weave Base -Itabashi Honcho 板橋本町203 2階 | 2K | 14.4万円
志村警察署 清水町交番が441mのところにあります。室内設備は洗面化粧台・浴室乾燥機など大変充実し
| 賃料 | 14.4万円 | 管理費・共益費 | 1.5万円 |
|---|---|---|---|
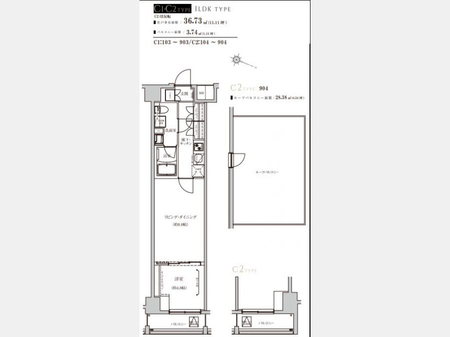
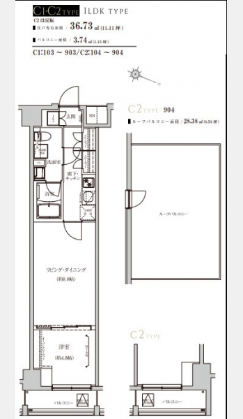
| 敷金/礼金 | なし / なし | 専有面積 | 36.73m² |
| 間取り | 2K | 階建 | 2階/10階建(B1階) |
Weave Base -Itabashi Honcho 板橋本町203の詳細
| 物件種別 | マンション | ||
|---|---|---|---|
| 賃料 | 14.4万円 | 管理費・共益費 | 1.5万円 |
| 敷金/保証金 | なし / - | 礼金/償却・敷引 | なし / - |
| 更新料 | - | ||
| その他費用 | - | ||
| 所在地 | 東京都板橋区清水町55-3 | ||
| 交通 | |||
| 間取り | 2K | 間取り内訳 | |
| 専有面積 | 36.73m² | バルコニー面積 | |
| 築年月(築年数) | 2025年05月(新築) | 方位 | 東 |
| 建物構造 | RC(鉄筋コンクリート) | 所在階/階建 | 2階/10階建(B1階) |
| 総戸数 | - | 駐車場 | |
| 保険料 | 要 | 契約期間 | 3年間 |
| 現況(予定年月) | 即時 | ||
| 管理 | |||
| 設備・条件 | 2階以上、システムキッチン、バス・トイレ別、温水洗浄便座、浴室乾燥機、室内洗濯機置き場、エアコン、バルコニー、即入居可、礼金なし、敷金なし、ペット相談、2人入居相談、仲介手数料無料、インターネット対応、CATV、オートロック、TVドアホン、防犯カメラ、宅配ボックス、エレベータ、都市ガス | ||
| 備考 | |||
| 周辺施設 |
コンビニ距離339m、スーパー距離350m、病院距離766m |
||
| 物件番号 | 992150 | 取引態様 | 仲介 |
| 情報更新日 | 2026年02月17日 | ||
| 物件番号 | |||
敷金・礼金・家賃・入居時期時期など、何でもご相談ください!
板橋でのお部屋探しなら仲宿商店街にある当店へ!
ハウス・トゥ・ハウス板橋区役所前店で元気にお待ちしております!







