Weave Base -Itabashi Honcho 板橋本町904 9階 | 2K | 20.2万円
板橋区エリアでの住まいなら、住み心地も快適な「Weave Base -Itabashi Honcho
| 賃料 | 20.2万円 | 管理費・共益費 | 1.5万円 |
|---|---|---|---|
| 敷金/礼金 | なし / なし | 専有面積 | 36.73m² |
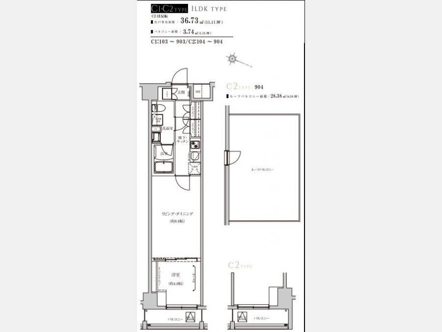
| 間取り | 2K | 階建 | 9階/10階建(B1階) |
Weave Base -Itabashi Honcho 板橋本町904の詳細
| 物件種別 | マンション | ||
|---|---|---|---|
| 賃料 | 20.2万円 | 管理費・共益費 | 1.5万円 |
| 敷金/保証金 | なし / - | 礼金/償却・敷引 | なし / - |
| 更新料 | - | ||
| その他費用 | - | ||
| 所在地 | 東京都板橋区清水町55-3 | ||
| 交通 | |||
| 間取り | 2K | 間取り内訳 | |
| 専有面積 | 36.73m² | バルコニー面積 | |
| 築年月(築年数) | 2025年05月(新築) | 方位 | 東 |
| 建物構造 | RC(鉄筋コンクリート) | 所在階/階建 | 9階/10階建(B1階) |
| 総戸数 | - | 駐車場 | |
| 保険料 | 要 | 契約期間 | 3年間 |
| 現況(予定年月) | 即時 | ||
| 管理 | |||
| 設備・条件 | 2階以上、システムキッチン、バス・トイレ別、温水洗浄便座、浴室乾燥機、室内洗濯機置き場、エアコン、バルコニー、即入居可、礼金なし、敷金なし、ペット相談、2人入居相談、インターネット対応、CATV、オートロック、TVドアホン、防犯カメラ、宅配ボックス、エレベータ、都市ガス | ||
| 備考 | 近くにはセブンイレブン 板橋清水町東店(徒歩2分)がありちょっとした買い物に便利です。室内設備は洗面化粧台・浴室乾燥機など豊富に揃っており、過ごしやすいお部屋になっております。CATV対応のマンションです。板橋区や都営三田線板橋本町付近であなたのライフスタイルに合ったお部屋を見つけましょう。当社スタッフが全力でサポート致します。 | ||
| 周辺施設 |
コンビニ距離339m、スーパー距離350m、病院距離766m |
||
| 物件番号 | 962247 | 取引態様 | 仲介 |
| 情報更新日 | 2026年01月22日 | ||
| 物件番号 | |||
敷金・礼金・家賃・入居時期時期など、何でもご相談ください!
JR山手線・巣鴨駅から徒歩1分!
ハウス・トゥ・ハウス巣鴨店で元気にお待ちしております!







