プライムアーバン南池袋802 8階 | 1R | 14.3万円
お車でご案内いたします。お気軽にお問い合わせください。
| 賃料 | 14.3万円 | 管理費・共益費 | 0.6万円 |
|---|---|---|---|
| 敷金/礼金 | 1ヶ月 / 1ヶ月 | 専有面積 | 29.73m² |
| 間取り | 1R | 階建 | 8階/11階建 |
プライムアーバン南池袋802の詳細
| 物件種別 | マンション | ||
|---|---|---|---|
| 賃料 | 14.3万円 | 管理費・共益費 | 0.6万円 |
| 敷金/保証金 | 1ヶ月 / - | 礼金/償却・敷引 | 1ヶ月 / - |
| 更新料 | 1ヶ月 | ||
| その他費用 | 鍵交換費用:36,300円 | ||
| 所在地 | 東京都豊島区南池袋2丁目30 | ||
| 交通 | |||
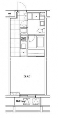
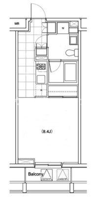
| 間取り | 1R | 間取り内訳 |
洋室 8.4 畳 1 室 |
| 専有面積 | 29.73m² | バルコニー面積 | |
| 築年月(築年数) | 2006年07月(築19年) | 方位 | 南東 |
| 建物構造 | RC(鉄筋コンクリート) | 所在階/階建 | 8階/11階建 |
| 総戸数 | 49戸 | 駐車場 | 空無 |
| 保険料 | 要 | 契約期間 | 2年間 |
| 現況(予定年月) | 2026年01月中旬 | ||
| 管理 | |||
| 設備・条件 | 2階以上、システムキッチン、バス・トイレ別、温水洗浄便座、浴室乾燥機、室内洗濯機置き場、フローリング、エアコン、バルコニー、保証人不要、CSアンテナ、CATV、光ファイバー、オートロック、TVドアホン、防犯カメラ、宅配ボックス、エレベータ、都市ガス | ||
| 備考 | ◆退去時の室内清掃費用・エアコン洗浄費用は借主様の実費負担になります◆貸主指定の火災保険加入必須 | ||
| 周辺施設 |
コンビニ距離55m、スーパー距離417m、病院距離1,004m |
||
| 物件番号 | 960329 | 取引態様 | 仲介 |
| 情報更新日 | 2026年01月23日 | ||
| 物件番号 | |||
敷金・礼金・家賃・入居時期時期など、何でもご相談ください!
JR山手線・巣鴨駅から徒歩1分!
ハウス・トゥ・ハウス巣鴨店で元気にお待ちしております!







